Обяви За нас Контакти
Продава ЗАВЕДЕНИЕ
град Пловдив, Център
Широк Център - Изток
150 000 €
293 374.50 лв.

(1 339 €, 2 618.86 лв./m2)
Не се начислява ДДС
История на цената
Коригирана в 14:30 на 16 януари, 2026 год.
Обявата е посетена 1257 пъти.
Площ:
112 m2
Строителство:
Тухла, Ще бъде въведен в експлоатация 2026 г.

Описание на имота:


Оферта 66389: ЕКСКЛУЗИВНА НОВА СГРАДА, САМО ОТ АГЕНЦИЯ 'КОНДОР'!!!



Локация: Имаме удоволствието да Ви представим новият ни обект разположен в Широкия Център с лесен и бърз достъп към изходите на града.
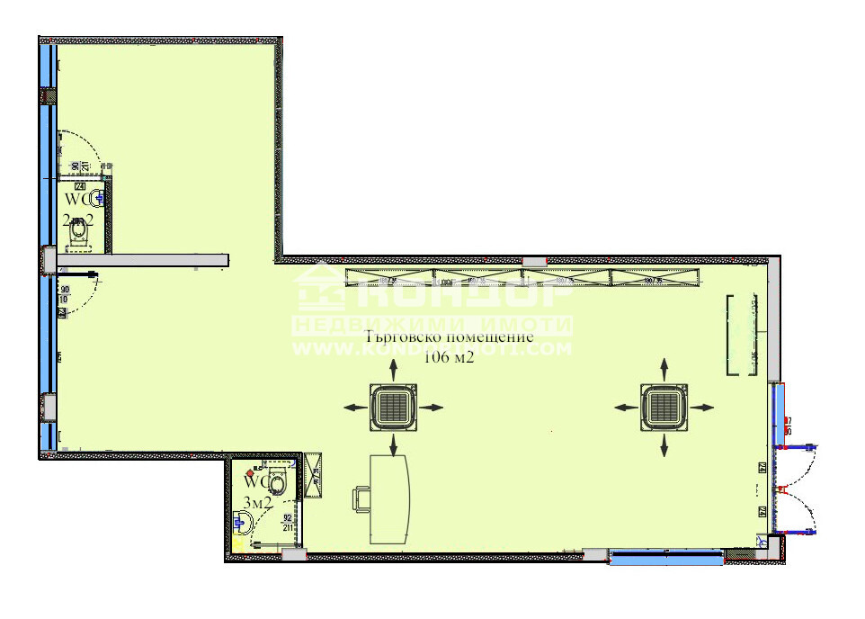
Разположение: Търговският обект е с лице към улица, височина 3.40 м., състои се от едно Г - образно помещение с площ от 106кв.м. с възможност да се обособят две зали и два санитарни възела. Имота е подходящ за ресторант, пицария, сладкарница и други. Към търговското помещение има възможност да се наемат партерни паркоместа за клиентите или да се оформи лятна градина!
Изпълнение: *Стъклена окачена фасада най-висок клас- Алумил с висока енергийна ефективност, повишено ниво на звукоизолация, статичност и функционалност при екстремни природни явления. * Тухли- с високо качество; Асансьори- три броя високоскоростни асансьора, като единия от тях ще бъде товарен. * Озеленяване около сградата с добре изградена и поддържана инфраструктура, покривни тераси с кътове за отдих с общ достъп за живущите.
ВИЖТЕ ОЩЕ ИЗГОДНИ ОФЕРТИ НА https://www.kondorimoti.com/ С ЕЖЕДНЕВНА АКТУАЛИЗАЦИЯ!
Особености
Тухла
За контакт:
0893310100

Този имот се предлага само на частни лица
Брокер:
Женя Цанкова
0893310100
Още оферти от брокера: Продава | Дава под наем | Купува | Наема
Агенция:
КОНДОР - НЕДВИЖИМИ ИМОТИ
0897 777 032 , 0893 554 200;
КОНДОР - НЕДВИЖИМИ ИМОТИ logo
Медал за прослужено време
В imot.bg от 2004 г.
kondor.imot.bg
Адрес:
област Пловдив, гр. Пловдив, ул.Петко Д.Петков 23,ет.4 /до ТЦ Гранд/
http://www.kondorimoti.com
ИЗПРАТИ ЗАПИТВАНЕ
ИЗПРАТИ ЗАПИТВАНЕТО

Продава ЗАВЕДЕНИЕ
град Пловдив, Център
Широк Център - Изток
Обява: 1m174895486288800

150 000 €
293 374.50 лв.
История на цената
(1 339 €, 2 618.86 лв./m2)

Не се начислява ДДС
ЗАПАЗИ ОБЯВАТА

Местоположение: град Пловдив, Център, Широк Център - Изток

Допълнителни данни за имотите в района и сравнение с други райони

Покажи

Период

и 2 месеца

* Средните цени са определени чрез медианна стойност