Обяви За нас Контакти
Продава ЗАВЕДЕНИЕ
град Пловдив, Кършияка
950 880 €
1 859 759.63 лв.

(2 830 €, 5 535.00 лв./m2)
Цената е с включено ДДС
Коригирана в 16:14 на 29 декември, 2025 год.
Обявата е посетена 50 пъти.
Площ:
336 m2
Строителство:
Тухла, Ще бъде въведен в експлоатация 2026 г.

Описание на имота:


Оферта 65851: Представяме Ви нов проект вдъхновен от най-добрите имоти на европейския пазар, представляващ комбинация между удобно разположен дом, качествено строителство и зелени пространства. СПЕЦИАЛНО ПРЕДЛОЖЕНИЕ- сгради с нисък % общи части. Нов, модерен проект представляващ две жилищни сгради в един общ ограден двор и много зелени площи.
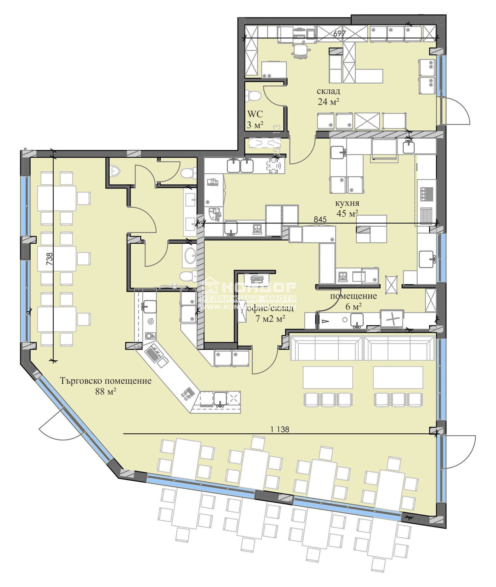
Разпределения - Сграда със смесено ползване, апартаменти, офиси, магазини, заведения. РЕСТОРАНТЪТ, който ви предлагаме е на едно ниво и се състои основно помещение, склад, няколко санитарни помещения, кухня, сервитьорски офис, с площ 222 кв.м. и дворно място 209 кв.м. ГОЛЯМА ВИТРИНА с лице на оживена улица.
Материали - Жилищната сграда се изражда съгласно най-високите технологични изисквания за качество и лукс. Използваните материали са съобразени с най-новите тенденции в строителството - модерна външна облицовка, покривна и фасадна изолация С КАМЕННА ВАТА на Baumit , Reynaers CS 77 алуминиева прозоречна система с троен стъклопакет, която отговаря на най-високите изисквания за термална изолация, стабилност и сигурност. Австрийски обков MACO. Луксозните общи части с камък, мазилки Оточенто, парапети от ковано желязо, фотоклетки и безшумен италиански асансьор, допринасят допълнително за усещането за лукс и комфорт на обитателите.
За удобството на своите собственици, сградата разполага с гаражи и паркоместа. Проектът е предназначен за модерния забързан човек търсещ удобствата на града, но в тиха и спокойна среда далеч от шума и мръсния въздух. Приложеното 3Д изображение е примерно.ВИЖТЕ ОЩЕ ИЗГОДНИ ОФЕРТИ НА https://www.kondorimoti.com/ С ЕЖЕДНЕВНА АКТУАЛИЗАЦИЯ!
Особености
Тухла
За контакт:
0894343353

Този имот се предлага само на частни лица
Брокер:
Теодор Банев
894343353
Още оферти от брокера: Продава | Дава под наем | Купува | Наема
Агенция:
КОНДОР - НЕДВИЖИМИ ИМОТИ
0897 777 032 , 0893 554 200;
КОНДОР - НЕДВИЖИМИ ИМОТИ logo
Медал за прослужено време
В imot.bg от 2004 г.
kondor.imot.bg
Адрес:
област Пловдив, гр. Пловдив, ул.Петко Д.Петков 23,ет.4 /до ТЦ Гранд/
http://www.kondorimoti.com
ИЗПРАТИ ЗАПИТВАНЕ
ИЗПРАТИ ЗАПИТВАНЕТО

Продава ЗАВЕДЕНИЕ
град Пловдив, Кършияка
Обява: 1m173286731194431

950 880 €
1 859 759.63 лв.
(2 830 €, 5 535.00 лв./m2)

Цената е с включено ДДС
ЗАПАЗИ ОБЯВАТА

Местоположение: град Пловдив, Кършияка

Допълнителни данни за имотите в района и сравнение с други райони

Покажи

Период

и 3 месеца

* Средните цени са определени чрез медианна стойност