Обяви За нас Контакти
Продава КЪЩА
град Пловдив, Остромила
235 000 €
459 620.05 лв.

(1 343 €, 2 626.68 лв./m2)
Цената е с включено ДДС
История на цената
Публикувана в 16:22 на 15 април, 2026 год.
Обявата е посетена 71 пъти.
Площ:
175 m2
Двор:
190 m2
Строителство:
Тухла, Ще бъде въведен в експлоатация 2026 г.

Описание на имота:


Оферта 68689 - Имаме удоволствието да ви предоставим възможността да оставите апартамента в забързания град и да заживеете на спокойно и уютно място в покрайнините му, предлагайки ви новоизграждаща се самостоятелна Къща в БУТИКОВ ЛУКСОЗЕН КОМПЛЕКС с Лимитиран Брой от само шест Къщи в кв. Остромила .

Района се отличава с ниско застрояване предимно от еднофамилни къщи, уредена инфраструктура - удобен транспорт към централна градска част, лесен и удобен достъп : от асфалтов път, ток и права вода.

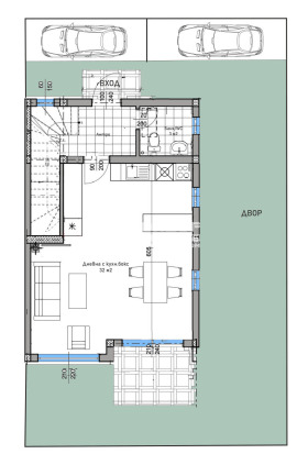
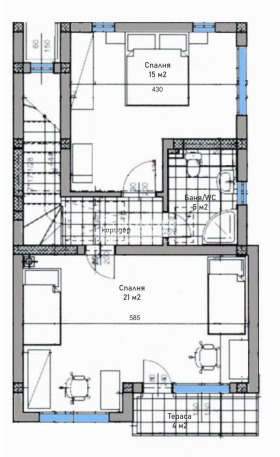
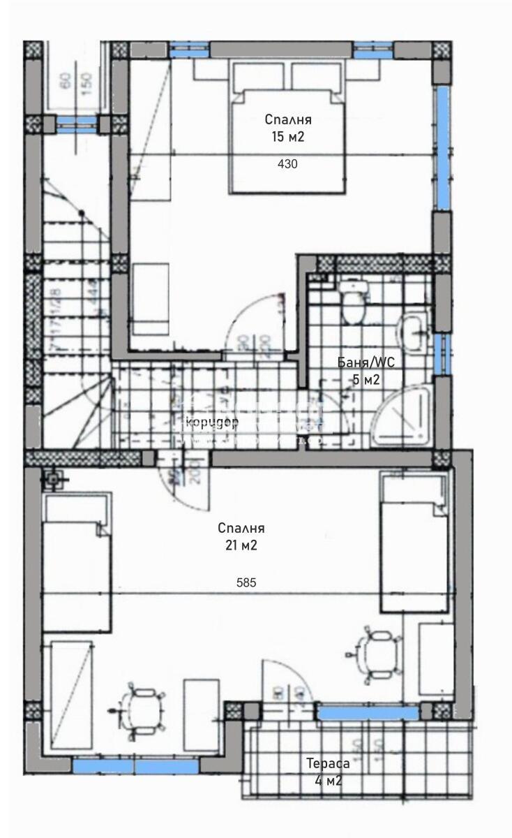
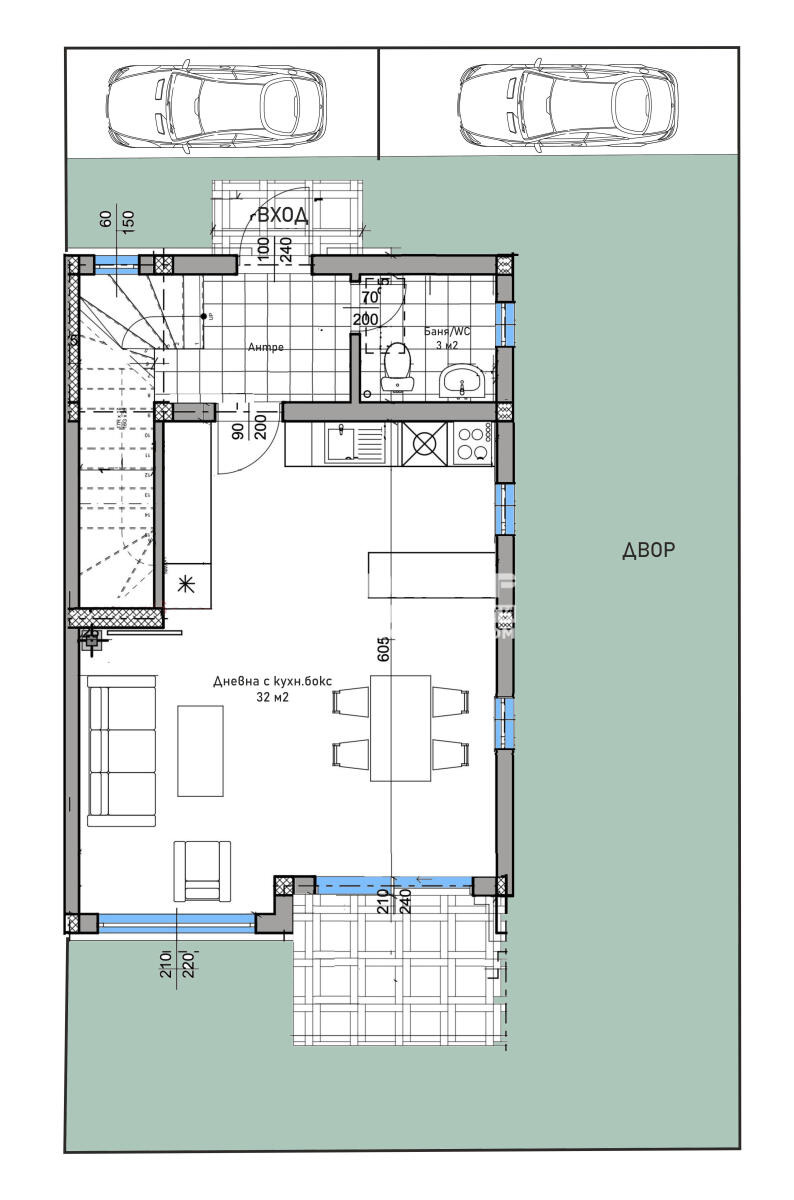
РАЗПРЕДЕЛЕНИЕ: Къщата е на две нива с общо застроена площ от 175 кв.м., проектирана с модернистична визия и концепция, залагаща на увеличени светли пространства, високи тавани, френски прозорци създаващи усещане за простор и свобода. Паркирането е решено като всяка къща разполага с по две паркоместа. Къщите са с достъп от асфалтов път, вързани към Вик с права вода, озеленени пространства !!! На първо ниво е разположена просторна и функционална югоизточна дневна с площ от 32.00 кв.м. , която ще създаде желания комфорт и уют, оформена на кътове: място за Камина, кът за мека мебел с TV секция, трапезарна част и кухненски бокс и излаз на веранда с двор с площ от 135.00 кв.м., , широко входно антре с място за гардеробна, баня с тоалетна и стълбище към втория етаж. На второ ниво са разположени две комфортни спални, баня с тоалетна и тераса към едната спалня. Къщата разполага и с допълнително Подпокривно пространство с капандури тип Велукс с възможност за индивидуално предназначение като например - трета спалня, кино зала, фитнес зала, плейграунд. Комплекса е разположен в южната част на кв. Остромила, обграден от природа която дава неподправено усещане за простор и спокойствие с невероятна гледка към Родопите. Паркирането е решено с две Паркоместа пред самата къща.

Техническа спецификация на довършителните работи:

Настилки изравнителна замазка.

Стени и тавани измазани с машинна мазилка.

Външни стени -топлоизолация 10 см. и радвижена фасада с обшивка от Еталбонд.

Дограма висококачествена 6-камерна PVC.

Предимства - Градски транспорт Автобус 113 , Лесен достъп до Околовръстен път, видеонаблюдение и контролиран достъп.

Възможност за разсрочено плащане в рамките на строителството или Закупуване чрез Банков Кредит с изключително изгодни условия за Клиенти на Агенция КОНДОР !!!
Особености
Тухла
За контакт:
0897777032

Този имот се предлага само на частни лица
Брокер:
Кондор Имоти
0897777032
Още оферти от брокера: Продава | Дава под наем | Купува | Наема
Агенция:
КОНДОР - НЕДВИЖИМИ ИМОТИ
0897 777 032 , 0893 554 200;
КОНДОР - НЕДВИЖИМИ ИМОТИ logo
Медал за прослужено време
В imot.bg от 2004 г.
kondor.imot.bg
Адрес:
област Пловдив, гр. Пловдив, ул.Петко Д.Петков 23,ет.4 /до ТЦ Гранд/
http://www.kondorimoti.com
ИЗПРАТИ ЗАПИТВАНЕ
ИЗПРАТИ ЗАПИТВАНЕТО

Продава КЪЩА
град Пловдив, Остромила
Обява: 1j177625935633296

235 000 €
459 620.05 лв.
История на цената
(1 343 €, 2 626.68 лв./m2)

Цената е с включено ДДС
ЗАПАЗИ ОБЯВАТА

Местоположение: град Пловдив, Остромила

Допълнителни данни за имотите в района и сравнение с други райони

Покажи

Период

и 4 месеца

* Средните цени са определени чрез медианна стойност