Обяви 3 За нас Контакти
Продава КЪЩА
област Пловдив, с. Марково
300 000 €
586 749.00 лв.

(1 705 €, 3 334.69 лв./m2)
Не се начислява ДДС
История на цената
Коригирана в 9:04 на 23 април, 2026 год.
Обявата е посетена 245 пъти.
Площ:
176 m2
Двор:
40 m2
Строителство:
Тухла, Ще бъде въведен в експлоатация 2026 г.

Описание на имота:


Оферта 65071 - Предлагаме редова къща с афалтов достъп и гараж в района на хотел Марково.

Имота се намира на перфектна локация и е с функционално разпределение както следва:

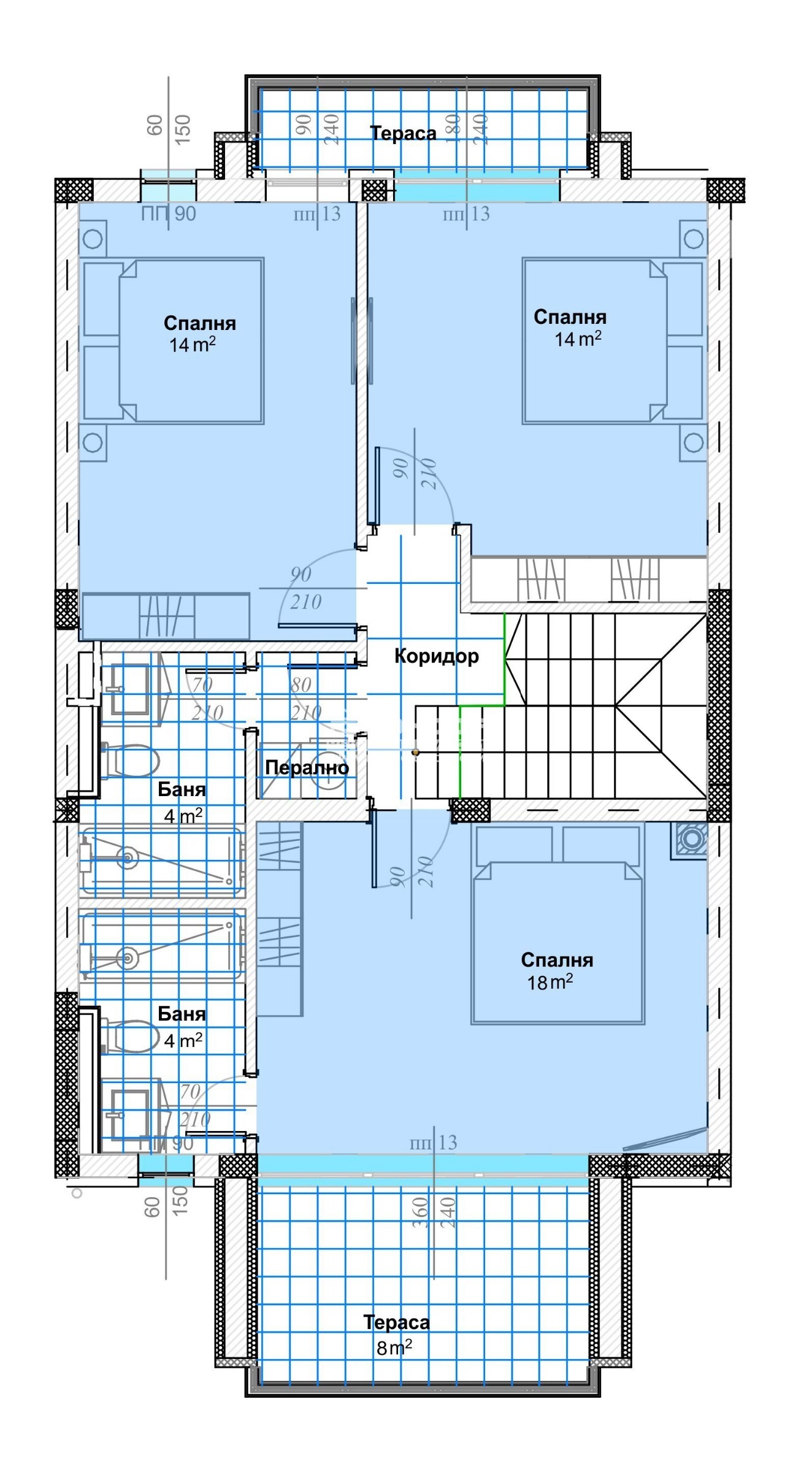
На първото ниво са разположени покрит гараж, антре и голяма слънчева дневна с трапезария и кухненска част - 40кв
На вторият етаж са ситуирани две детски стаи по 14кв с тереса, перално отделение, баня с тоалетна и голяма родителска спалня - 18кв със собствена баня и тоалетна
Имотът е изграден с висококачествени материали и разполага със съвременни технологии термопомпа и фотоволтаична система, които осигуряват ниски разходи за отопление и електроенергия.
Ако търсите уют и съвременен начин на живот, не пропускайте тази възможност !
Особености
Тухла
За контакт:
0893310100

Този имот се предлага само на частни лица
Брокер:
Женя Цанкова
0893310100
Още оферти от брокера: Продава | Дава под наем | Купува | Наема
Агенция:
КОНДОР - НЕДВИЖИМИ ИМОТИ
0897 777 032 , 0893 554 200;
КОНДОР - НЕДВИЖИМИ ИМОТИ logo
Медал за прослужено време
В imot.bg от 2004 г.
kondor.imot.bg
Адрес:
област Пловдив, гр. Пловдив, ул.Петко Д.Петков 23,ет.4 /до ТЦ Гранд/
http://www.kondorimoti.com
ИЗПРАТИ ЗАПИТВАНЕ
ИЗПРАТИ ЗАПИТВАНЕТО

Продава КЪЩА
област Пловдив, с. Марково
Обява: 1j177443616945200

300 000 €
586 749.00 лв.
История на цената
(1 705 €, 3 334.69 лв./m2)

Не се начислява ДДС
ЗАПАЗИ ОБЯВАТА

Местоположение: област Пловдив, с. Марково