Обяви 3 За нас Контакти
Продава КЪЩА
област Пловдив, с. Марково
380 000 €
743 215.40 лв.

(1 297 €, 2 536.71 лв./m2)
Не се начислява ДДС
Коригирана в 9:13 на 5 октомври, 2023 год.
Обявата е посетена 56 пъти.
Площ:
293 m2
Двор:
500 m2
Строителство:
Тухла,

Описание на имота:


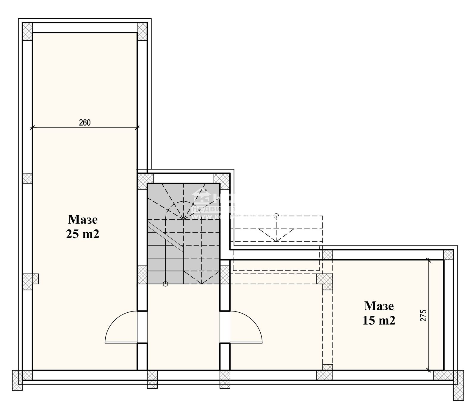
Оферта 57726: Предлагаме Ви да закупите новоизградена къща с Акт 16, ситуирана в парцел с площ от 500кв.м., с панорамна гледка към град Пловдив. Основните й предимства са модерната архитектура, добрата локация и функционалното разпределение на жилищната площ. Къщата е с РЗП от 293 кв.м., като са разпределени на две нива. На първо ниво са разположени просторна и светла дневна 39 кв.м. с излаз на страхотна южна веранда, трапезария и кухненска част - с излаз на втора веранда с гледка към града. Широко входно антре и просторен и коридор отвеждат към една самостоятелна спалня със собствена баня с тоалетна, килер, санитарен възел и топла връзка към Гараж. На второ ниво има две големи самостоятелни спални, като родителската е с площ от 30.00кв.м. със собствена баня с тоалетна, светъл дрешник и излаз на тераса , втората спалня е с площ от 19.50кв.м. също със собствена баня с тоалетна и излаз на тераса. В подземната сутеренна част има избено помещение с площ от 40кв.м.. При изпълнението е заложено на висококачествени материали, червена Австрийска Тухла, троен стъклопакет на шест камерна дограма, 10см. външна изолация, изградена и оформена външна планировка. Района се оформя като квартал от новопостроени къщи. Парцела е с площ от 500кв.м. Цената включва стандартно завършване с изградена ограда на имота и завършена планировка. Паркирането е подсигурено с функционален и удобен Гараж и едно Паркомясто пред самата къща. Възможност за закупуване чрез Банков Кредит!!! ВИЖТЕ ОЩЕ ИЗГОДНИ ОФЕРТИ НА https://www.kondorimoti.com/ С ЕЖЕДНЕВНА АКТУАЛИЗАЦИЯ!

Особености
Тухла
За контакт:
0897777032

Този имот се предлага само на частни лица
Брокер:
Кондор Имоти
0897777032
Още оферти от брокера: Продава | Дава под наем | Купува | Наема
Агенция:
КОНДОР - НЕДВИЖИМИ ИМОТИ
0897 777 032 , 0893 554 200;
КОНДОР - НЕДВИЖИМИ ИМОТИ logo
Медал за прослужено време
В imot.bg от 2004 г.
kondor.imot.bg
Адрес:
област Пловдив, гр. Пловдив, ул.Петко Д.Петков 23,ет.4 /до ТЦ Гранд/
http://www.kondorimoti.com
ИЗПРАТИ ЗАПИТВАНЕ
ИЗПРАТИ ЗАПИТВАНЕТО

Продава КЪЩА
област Пловдив, с. Марково
Обява: 1j169156213238145

380 000 €
743 215.40 лв.
(1 297 €, 2 536.71 лв./m2)

Не се начислява ДДС
ЗАПАЗИ ОБЯВАТА

Местоположение: област Пловдив, с. Марково