Обяви За нас Контакти
Продава 3-СТАЕН
град Пловдив, Христо Смирненски
154 120 €
301 432.52 лв.

(1 526 €, 2 984.60 лв./m2)
Цената е с включено ДДС
История на цената
Публикувана в 16:18 на 5 март, 2026 год.
Обявата е посетена 144 пъти.
Площ:
101 m2
Етаж:
2-ри от 3
Строителство:
Тухла, Ще бъде въведен в експлоатация 2029 г.

Описание на имота:


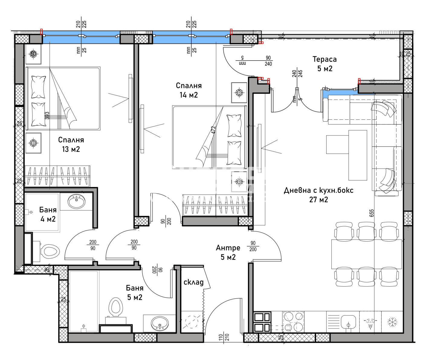
Оферта 68953 - Представяме Ви изключителна възможност да притежавате дом в елегантна, модерна сграда разположена в район с ниско строителство, тишина и много зеленина.Комплексът разполага с големи тревни площи, красиво озеленяване и оформени зони за отдих. Просторният двор създава среда, подходяща както за семейства с деца, така и за хора, търсещи спокойствие след динамичния градски ден. Функционален тристаен апартамента - състои се от входно антре с място за перално помещение, просторна дневна 27кв.м. с трапезария и кухненски бокс, две големи спални: родителска 14кв.м. със собствена баня, детска 14кв.м., втора голяма баня с тоалетна и една тераса.

Сградата е проектирана с внимание към всеки детайл само 6 просторни апартамента, разпределени на 3 етажа, гарантиращи спокойствие, уединение и висок стандарт на живот.

Жилищата се отличават с:

- Правилни форми на помещенията

- Просторни дневни с френски прозорци

- Светли спални с удобни ниши за гардероби

- Тераси с приятни гледки към зелени площи

- Оптимално използване на всеки квадратен метър

- Варианти за партерни апартаменти със собствен двор

Разпределенията са проектирани така, че да осигурят максимален комфорт и практичност в ежедневието без излишни коридори и загубени пространства. Обекта се намира в район с ниско застрояване, което гарантира:

-Повече светлина

- Спокойствие и липса на презастрояване

- Усещане за простор

- Среда с атмосфера на квартал от къщи

Комплекса предлага двойно подсигурени паркоместа (200%) за живущите, с удобна топла връзка към подземен паркинг.

Технически параметри и предимства:

Зарядни станции за електрически автомобили

Смарт камери и контролиран достъп

Покрив: прав покрив с хидроизолация + 10 см стиропор, замазка и допълнителна битумна хидроизолация

Дограма: алуминиева дограма ETEM с троен стъклопакет четири сезона

Висококачествена шумоизолация между плочата и замазката на всеки етаж

Климатици със сплит система

Общи части: италианска мазилка и италиански гранитогрес

Само 10% общи части към всеки имот

Възможност за схема 20% / 80% плащане

Тук ще откриете баланса между градските удобства и спокойствието на самостоятелен дом. Това е проект за хора, които търсят не просто апартамент, а дом с характер, спокойствие и дългосрочна стойност.
Особености
Тухла
За контакт:
0896720452

Този имот се предлага само на частни лица
Брокер:
Венцислав Георгиев
0896720452
Още оферти от брокера: Продава | Дава под наем | Купува | Наема
Агенция:
КОНДОР - НЕДВИЖИМИ ИМОТИ
0897 777 032 , 0893 554 200;
КОНДОР - НЕДВИЖИМИ ИМОТИ logo
Медал за прослужено време
В imot.bg от 2004 г.
kondor.imot.bg
Адрес:
област Пловдив, гр. Пловдив, ул.Петко Д.Петков 23,ет.4 /до ТЦ Гранд/
http://www.kondorimoti.com
ИЗПРАТИ ЗАПИТВАНЕ
ИЗПРАТИ ЗАПИТВАНЕТО

Продава 3-СТАЕН
град Пловдив, Христо Смирненски
Обява: 1c177272032919469

154 120 €
301 432.52 лв.
История на цената
(1 526 €, 2 984.60 лв./m2)

Цената е с включено ДДС
ЗАПАЗИ ОБЯВАТА

Местоположение: град Пловдив, Христо Смирненски

Допълнителни данни за имотите в района и сравнение с други райони

Покажи

Период

и 3 месеца

* Средните цени са определени чрез медианна стойност