Обяви За нас Контакти
Продава 3-СТАЕН
град Пловдив, Остромила
117 280 €
229 379.74 лв.

(1 289 €, 2 521.06 лв./m2)
Цената е с включено ДДС
История на цената
Публикувана в 11:59 на 7 януари, 2026 год.
Обявата е посетена 20 пъти.
Площ:
91 m2
Етаж:
2-ри от 3
Строителство:
Тухла, Ще бъде въведен в експлоатация 2027 г.

Описание на имота:


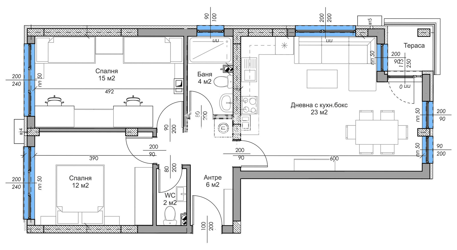
Оферта 68603 - ИНВЕСТИРАЙТЕ ВЪВ ВАШИЯ КОМФОРТ! Предлагаме ви тристаен апартамент в малка сграда с модернистичен почерк, съвременна визия и с нисък % общи части! Жилището се състои от ъглова и светла дневна 24кв.м. с трапезария и кухненски бокс, две самостоятелни спални: родителска 12кв.м. и деткса 15кв.м., баня с тоалетна, втора тоалетна, входно антре, килер и една тераса. Строителството ще се извършва от висококачествени материали и съвременни технологии, които защитават вашия дом от външните влияния. За това се залага на 10см. външна топлоизолация на австрийската фирма BAUMIT, тухли WIENERBERGER създадени от 100% естествени материали, които действат като естествен регулатор на микроклимата. За по- оптимални резултати се залага на на дограма Rehau-EuroDesign 70 с механизъм с двойно отваряне. Общите части са с мрамор и травертин а асансьора е италиански електромеханичен с луксозна кабина с мрамор, италианско дърво и лед панели. Входните врати на апартамента са масивни , блиндирани на Диадорс, ел. инсталацията е изпълнена с материали на ТМТ-Елдом с контакти на Шнайдер, три вида окабеляване за интернет и ТВ- оптичен до всеки апартамент. Изберете достоен лукс и така мечтаната хармония и сигурност.
Особености
Тухла
За контакт:
0896720456

Този имот се предлага само на частни лица
Брокер:
Ирена Галинчева
0896 720 456
Още оферти от брокера: Продава | Дава под наем | Купува | Наема
Агенция:
КОНДОР - НЕДВИЖИМИ ИМОТИ
0897 777 032 , 0893 554 200;
КОНДОР - НЕДВИЖИМИ ИМОТИ logo
Медал за прослужено време
В imot.bg от 2004 г.
kondor.imot.bg
Адрес:
област Пловдив, гр. Пловдив, ул.Петко Д.Петков 23,ет.4 /до ТЦ Гранд/
http://www.kondorimoti.com
ИЗПРАТИ ЗАПИТВАНЕ
ИЗПРАТИ ЗАПИТВАНЕТО

Продава 3-СТАЕН
град Пловдив, Остромила
Обява: 1c176777995130108

117 280 €
229 379.74 лв.
История на цената
(1 289 €, 2 521.06 лв./m2)

Цената е с включено ДДС
ЗАПАЗИ ОБЯВАТА

Местоположение: град Пловдив, Остромила

Допълнителни данни за имотите в района и сравнение с други райони

Покажи

Период

и 2 месеца

* Средните цени са определени чрез медианна стойност