Обяви За нас Контакти
Продава 3-СТАЕН
град Пловдив, Център
ВМИ
214 550 €
419 623.33 лв.

(2 307 €, 4 512.10 лв./m2)
Цената е с включено ДДС
История на цената
Коригирана в 10:19 на 26 януари, 2026 год.
Обявата е посетена 233 пъти.
Площ:
93 m2
Строителство:
Тухла, Ще бъде въведен в експлоатация 2027 г.

Описание на имота:


Оферта 64579 - ЕКСКЛУЗИВНО ПРЕДЛОЖЕНИЕ-ЛУКСОЗНА СГРАДА - ТОП ЛОКАЦИЯ ДО ВМИ, ПОДЗЕМНО ПАРКОМЯСТО В ЦЕНАТА! Бутикова кооперация в средиземноморски стил. Модерната архитектура и отличаваща се визия, са част от предимствата на кооперацията.
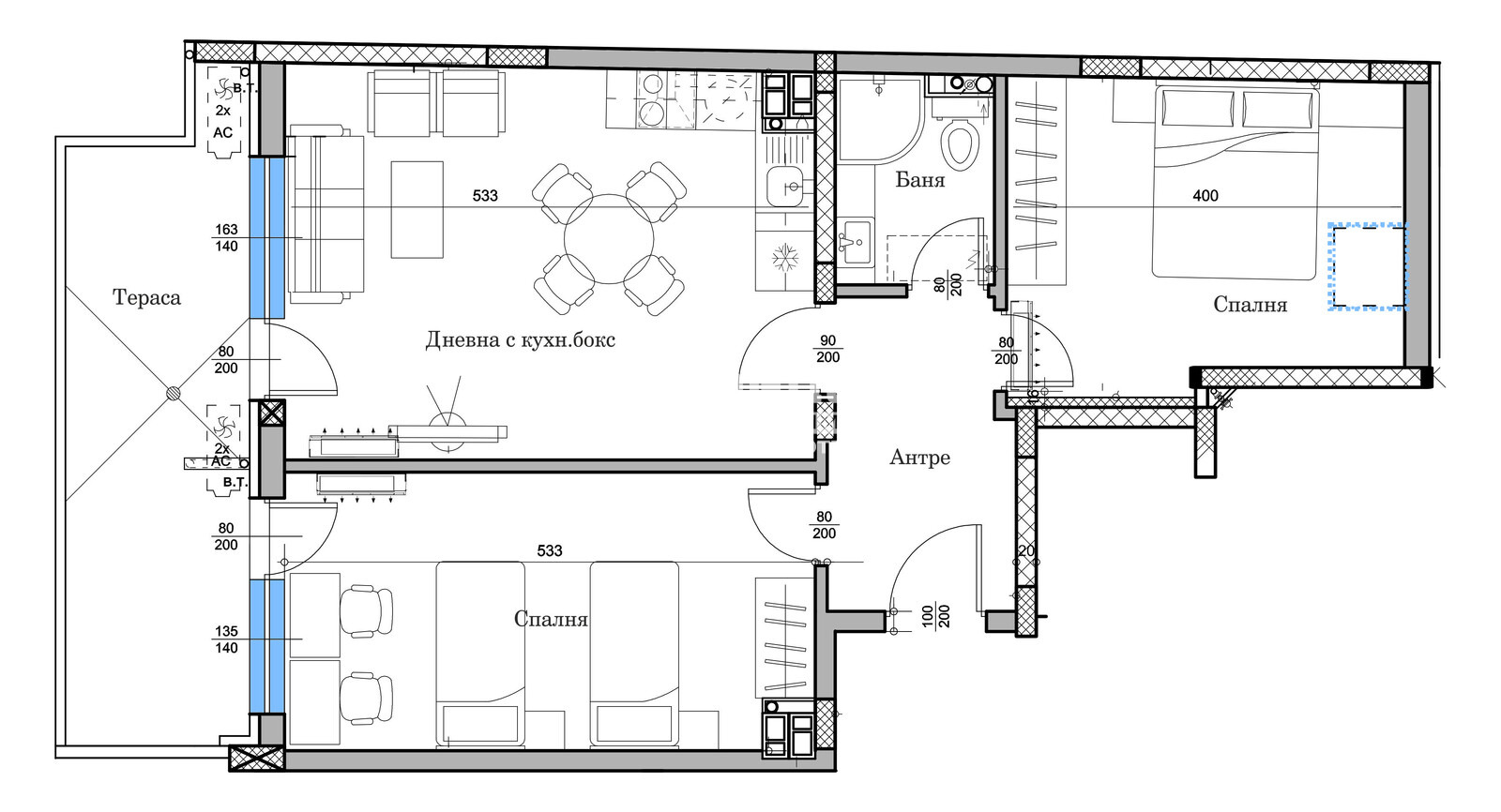
РАЗПРЕДЕЛЕНИЕ: Правилни, функционални форми на стаите - удобни за обзавеждане. Панорамен тристаен апартамент, състои се от светла дневна с кухненска част и излаз на чудесна тераса 12кв.м., просторна родителска спалня 15 кв.м., детска стая, баня с тоалетна и коридор.
ЛОКАЦИЯ: Един от най-търсените и скъпи райони в Центъра, в близост до пешеходната улица на града и Градската градина. В квартала - кафета, ресторанти, Мол, хранителни хипермаркети, спирки на градски транспорт, университети и няколко престижни училища и детски градини.
НАЧИН НА ЗАВЪРШВАНЕ: Обекта се изгражда съобразно най-новите високо технологични изисквания и материали-луксозни общи части, стени-красива декоративна мазилка, под-гранит,парапет- ковано желязо,осветление с фотоклетки, каменна външна облицовка, покривна 10см. изолация,фасадна-8см. с минерални мазилки, Немска PVC 6 камерна дървесен цвят дограма 24мм.със стъкла 4-ри сезона. Безшумен хидравличен асансьор. Прилагаме снимки от готови сгради на строителя.
ЗА СТРОИТЕЛЯ: Дългогодишен опит, натрупан в сферата на строителството, множество красиви сгради с топ локации в града.
ЕКСТРИ: Широк подземен паркинг с топла връзка към сградата - възможност за закупуване на второ паркомясто.
НАЧИН НА ПЛАЩАНЕ: Различни варианти на разсрочено плащане съобразени с възможностите на клиента. Възможност за банково кредитиране от водещи банки на преференциални условия.
Особености
Тухла
За контакт:
0897777032

Този имот се предлага само на частни лица
Брокер:
Кондор Имоти
0897777032
Още оферти от брокера: Продава | Дава под наем | Купува | Наема
Агенция:
КОНДОР - НЕДВИЖИМИ ИМОТИ
0897 777 032 , 0893 554 200;
КОНДОР - НЕДВИЖИМИ ИМОТИ logo
Медал за прослужено време
В imot.bg от 2004 г.
kondor.imot.bg
Адрес:
област Пловдив, гр. Пловдив, ул.Петко Д.Петков 23,ет.4 /до ТЦ Гранд/
http://www.kondorimoti.com
ИЗПРАТИ ЗАПИТВАНЕ
ИЗПРАТИ ЗАПИТВАНЕТО

Продава 3-СТАЕН
град Пловдив, Център
ВМИ
Обява: 1c176433428212056

214 550 €
419 623.33 лв.
История на цената
(2 307 €, 4 512.10 лв./m2)

Цената е с включено ДДС
ЗАПАЗИ ОБЯВАТА

Местоположение: град Пловдив, Център, ВМИ

Допълнителни данни за имотите в района и сравнение с други райони

Покажи

Период

и 2 месеца

* Средните цени са определени чрез медианна стойност