Обяви За нас Контакти
Продава 3-СТАЕН
град Пловдив, Остромила
120 670 €
236 010.01 лв.

(943 €, 1 844.35 лв./m2)
Цената е с включено ДДС
История на цената
Коригирана в 16:25 на 10 декември, 2025 год.
Обявата е посетена 167 пъти.
Площ:
128 m2
Строителство:
Тухла, Ще бъде въведен в експлоатация 2029 г.

Описание на имота:


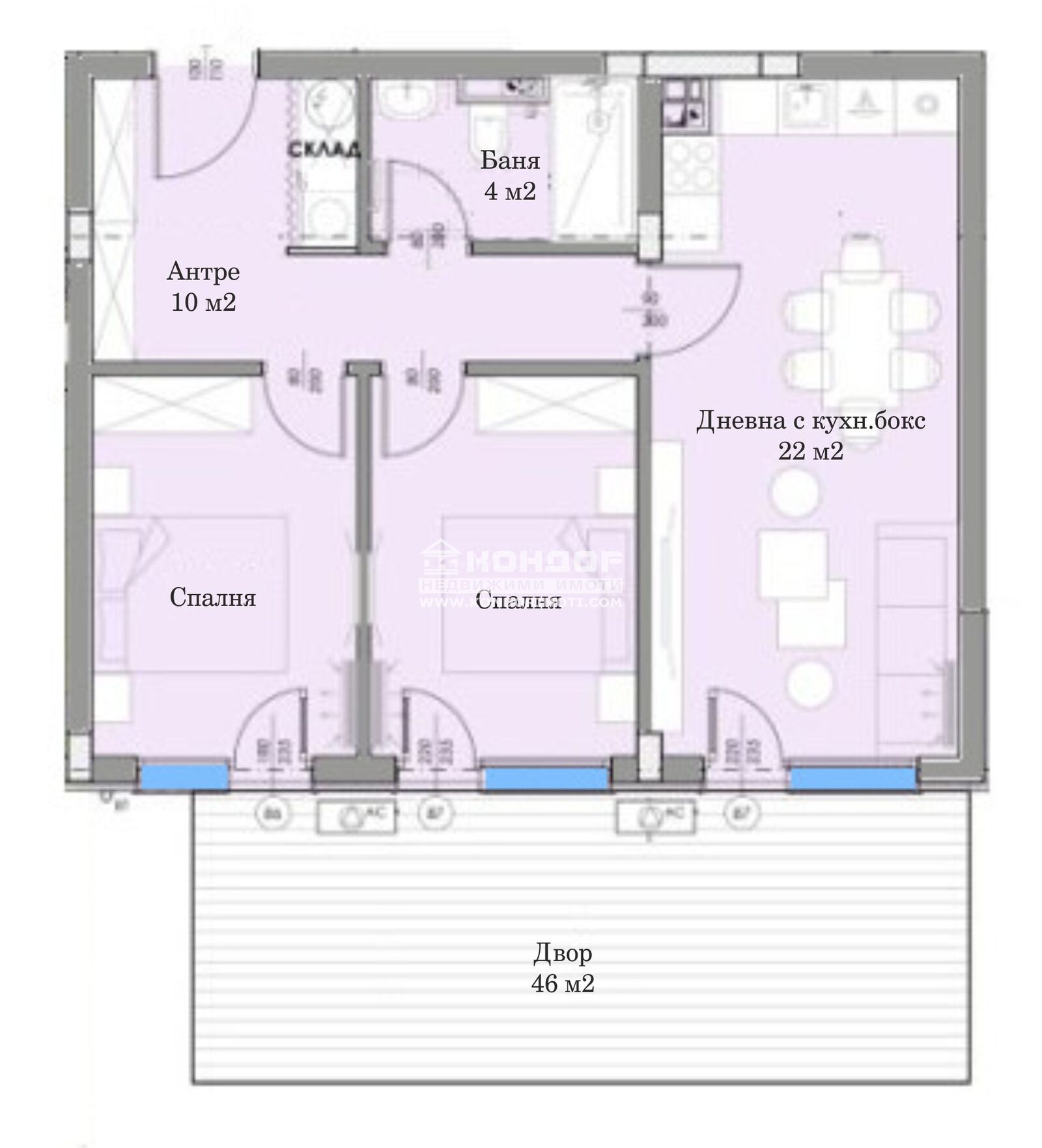
Оферта 68246 - Предлагаме ви за продажба тристаен слънчев апартамент в нова бутикова сграда на четири етажа, изградена по най-високи европейски стандарти и с внимание към всеки детайл. Жилището е с удобно и практично разпределение: дневна с трапезария и кухненски бокс - 22кв.м. две спални, баня с тоалетна, килер, входно антре и веранда 46кв. Сградата предлага луксозни общи части, модерна фасадна облицовка, топлоизолация и 5-камерна дограма, създавайки усещане за комфорт и уют. За удобството на собствениците са предвидени партерни паркоместа и подземни гаражи и паркоместа. Локация : в района на кв. Остромила с бърз достъп до центъра, в близост до супермаркети, училища и детски градини. Условия на плащане: възможност за банково финансиране при преференциални условия и разсрочено плащане по време на строителството. Не пропускайте шанса да откриете своя нов дом в една от най-търсените локации на града.
Особености
Тухла
За контакт:
0893310100

Този имот се предлага само на частни лица
Брокер:
Женя Цанкова
0893310100
Още оферти от брокера: Продава | Дава под наем | Купува | Наема
Агенция:
КОНДОР - НЕДВИЖИМИ ИМОТИ
0897 777 032 , 0893 554 200;
КОНДОР - НЕДВИЖИМИ ИМОТИ logo
Медал за прослужено време
В imot.bg от 2004 г.
kondor.imot.bg
Адрес:
област Пловдив, гр. Пловдив, ул.Петко Д.Петков 23,ет.4 /до ТЦ Гранд/
http://www.kondorimoti.com
ИЗПРАТИ ЗАПИТВАНЕ
ИЗПРАТИ ЗАПИТВАНЕТО

Продава 3-СТАЕН
град Пловдив, Остромила
Обява: 1c176295651699004

120 670 €
236 010.01 лв.
История на цената
(943 €, 1 844.35 лв./m2)

Цената е с включено ДДС
ЗАПАЗИ ОБЯВАТА

Местоположение: град Пловдив, Остромила

Допълнителни данни за имотите в района и сравнение с други райони

Покажи

Период

* Средните цени са определени чрез медианна стойност