Обяви За нас Контакти
Продава 3-СТАЕН
град Пловдив, Христо Смирненски
ХЕИ
193 270 €
378 003.26 лв.

(1 806 €, 3 532.23 лв./m2)
Цената е с включено ДДС
История на цената
Коригирана в 12:29 на 2 февруари, 2026 год.
Обявата е посетена 475 пъти.
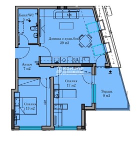
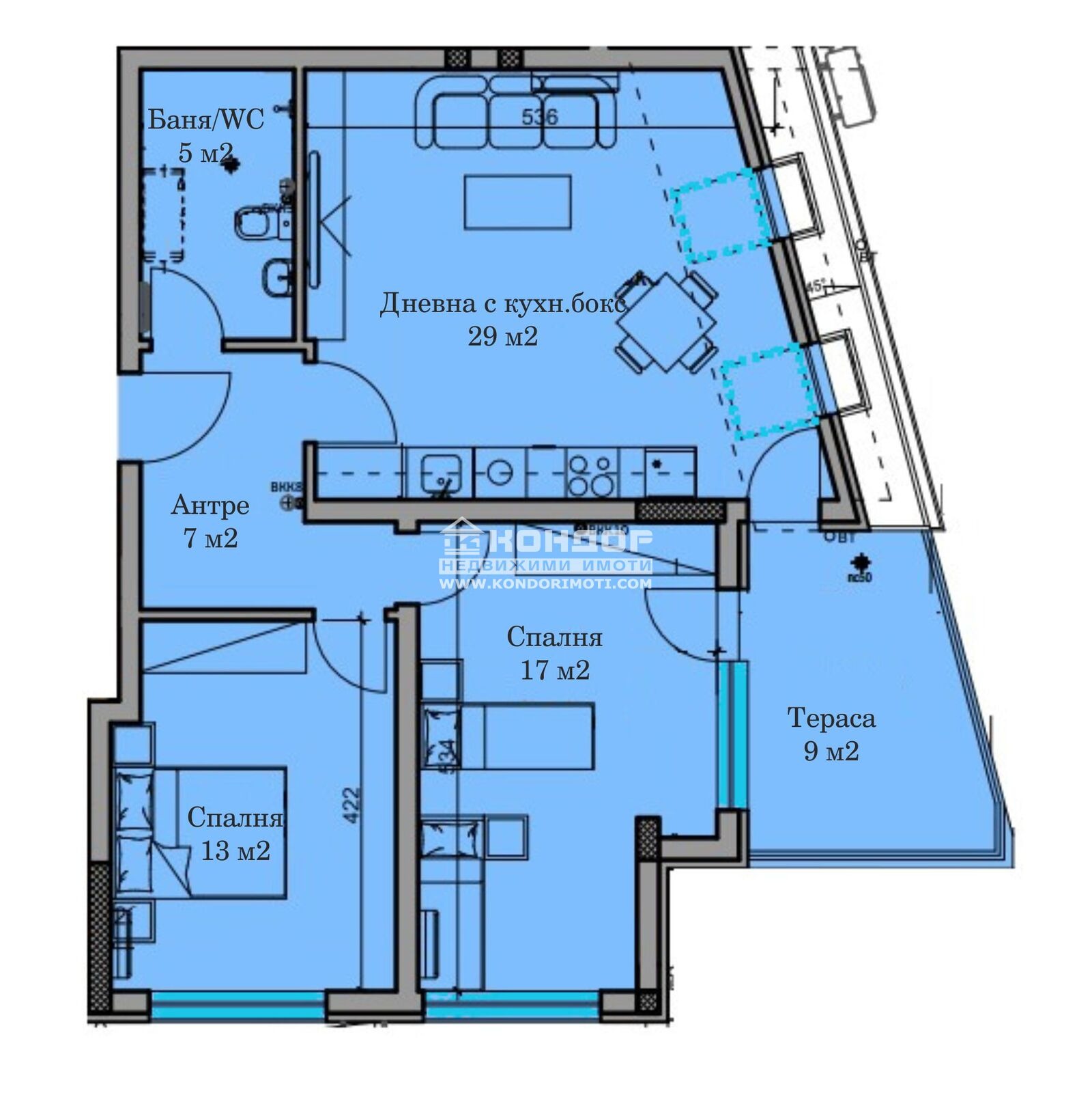
Площ:
107 m2
Етаж:
6-ти от 8
Строителство:
Тухла, Ще бъде въведен в експлоатация 2028 г.

Описание на имота:


Оферта 68189: НОВО ПРЕДЛОЖЕНИЕ: Представяме Ви новоизграждаща се луксозна сграда разположена на ТОП ЛОКАЦИЯ , проектирана така, че да създаде максимален комфорт и уют на живущите.

АПАРТАМЕНТИ с просторни стаи с правилни форми и много светлина!!! Жилището което Ви презентираме е със следното функционално разпределение;дневна с трапезария и кухненски бокс и излаз към тераса; две спални;баня с тоалетна и входно антре .

ЗА СТРОИТЕЛЯ: Обектът ще бъде изпълнен от строителна фирма с дългогодишен опит , доказала се в изграждането на модерни жилищни сгради, като разполагаме с готови сгради и можем да Ви покажем качеството на изпълнение, което се осъществява с висококачествени материали и съвременни технологии, по европейски стандарт, петкамерна PVC дограма, червена Австрийска Тухла, масивна Блиндирана входна врата с 4-странно заключване, сензорно осветление, хидравлични асансьори с огледална кабина.

ПАРКИРАНЕ: сградата разполага с външни паркоместа; покрити паркоместа и подземни гаражи.

Възможност за закупуване на разсрочено плащане в рамките на строителството или чрез Банков Кредит!!!
ЧУДЕСНА ИНВЕСТИЦИЯ предвид качеството на строителство, което може да видите на снимките в Галерия, взети от други готови сгради на строителя
Особености
Тухла
За контакт:
0876669194

Този имот се предлага само на частни лица
Брокер:
Нели Паунова
0876669194
Още оферти от брокера: Продава | Дава под наем | Купува | Наема
Агенция:
КОНДОР - НЕДВИЖИМИ ИМОТИ
0897 777 032 , 0893 554 200;
КОНДОР - НЕДВИЖИМИ ИМОТИ logo
Медал за прослужено време
В imot.bg от 2004 г.
kondor.imot.bg
Адрес:
област Пловдив, гр. Пловдив, ул.Петко Д.Петков 23,ет.4 /до ТЦ Гранд/
http://www.kondorimoti.com
ИЗПРАТИ ЗАПИТВАНЕ
ИЗПРАТИ ЗАПИТВАНЕТО

Продава 3-СТАЕН
град Пловдив, Христо Смирненски
ХЕИ
Обява: 1c176242203655567

193 270 €
378 003.26 лв.
История на цената
(1 806 €, 3 532.23 лв./m2)

Цената е с включено ДДС
ЗАПАЗИ ОБЯВАТА

Местоположение: град Пловдив, Христо Смирненски, ХЕИ

Допълнителни данни за имотите в района и сравнение с други райони

Покажи

Период

и 2 месеца

* Средните цени са определени чрез медианна стойност