Обяви 3 За нас Контакти
Продава 3-СТАЕН
град Пловдив, Тракия
114 140 €
223 238.44 лв.

(1 067 €, 2 086.87 лв./m2)
Цената е с включено ДДС
История на цената
Коригирана в 10:01 на 13 май, 2026 год.
Обявата е посетена 1219 пъти.
Площ:
107 m2
Строителство:
Тухла, Ще бъде въведен в експлоатация 2027 г.

Описание на имота:


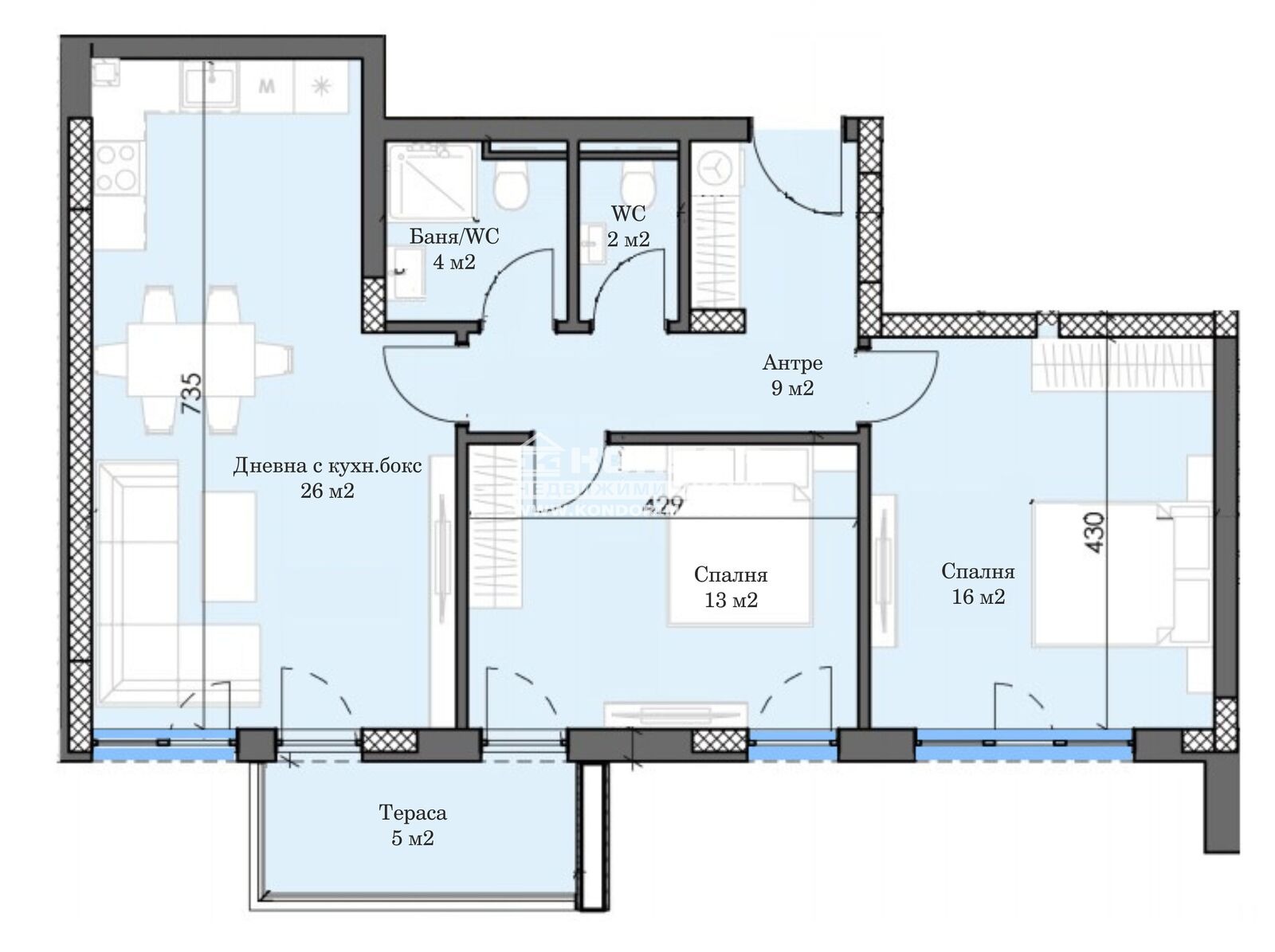
Оферта 65928: Предлагаме Ви възможността да закупите тристаен апартамент в новоизграждащ се луксозен жилищен комплекс с модерна визия, проектиран да създаде максимален комфорт на живущите в него. Функционално разположени жилищни секции с елегантен силует готов да предложи комфорт и модерен начин на живот. Едно от основните му предимства е страхотната локация, отлична комуникативност и динамична пътна инфраструктура, която осигурява бърз и лесен достъп до комплекса от всяка точка на града. Той съчетава лукс, спокойствие и комфорт с подсигурени паркоместа и гаражи. Жилището се състои от дневна /26 кв.м./ с кухненска част и трапезария, две самостоятелни спални 13 и 16 кв.м., баня с тоалетна, втора тоалетна, входно антре с място за перално и една тераса. Към апартамента има избено помещение, включено в цената! Основната концепция при проектирането е да се постигнат просторни и функционални стаи, с цел да се създаде максимален уют на модерното семейство. Изключителна съвременна архитектура и модерна технология на строителство. Визията е иновативна, привличаща внимание с уникалността си. Всяко жилище ще разполага с пълно окабеляване за домофон, интернет и кабелна телевизия, общите части са луксозно завършени, жилищата са с алуминиева дограма с троен стъклопакет от най-висок клас, масивна блиндирана входна врата. За удобство на живущите съществува възможността да закупят подземни паркоместа и гаражи с топла връзка към комплекса. Гъвкави схеми на разсрочено плащане спрямо възможностите на клиента в рамките на строителството или закупуване чрез Банков Кредит, на изключително изгодни условия за клиенти на агенцията !!!

ВИЖТЕ ОЩЕ ИЗГОДНИ ОФЕРТИ НА https://www.kondorimoti.com/ С ЕЖЕДНЕВНА АКТУАЛИЗАЦИЯ!
Особености
Тухла
За контакт:
0897777032

Този имот се предлага само на частни лица
Брокер:
Кондор Имоти
0897777032
Още оферти от брокера: Продава | Дава под наем | Купува | Наема
Агенция:
КОНДОР - НЕДВИЖИМИ ИМОТИ
0897 777 032 , 0893 554 200;
КОНДОР - НЕДВИЖИМИ ИМОТИ logo
Медал за прослужено време
В imot.bg от 2004 г.
kondor.imot.bg
Адрес:
област Пловдив, гр. Пловдив, ул.Петко Д.Петков 23,ет.4 /до ТЦ Гранд/
http://www.kondorimoti.com
ИЗПРАТИ ЗАПИТВАНЕ
ИЗПРАТИ ЗАПИТВАНЕТО

Продава 3-СТАЕН
град Пловдив, Тракия
Обява: 1c173348048883466

114 140 €
223 238.44 лв.
История на цената
(1 067 €, 2 086.87 лв./m2)

Цената е с включено ДДС
ЗАПАЗИ ОБЯВАТА

Местоположение: град Пловдив, Тракия

Допълнителни данни за имотите в района и сравнение с други райони

Покажи

Период

и 5 месеца

* Средните цени са определени чрез медианна стойност