Обяви 3 За нас Контакти
Продава 3-СТАЕН
град Пловдив, Остромила
146 090 €
285 727.20 лв.

(967 €, 1 891.29 лв./m2)
Цената е с включено ДДС
История на цената
Публикувана в 15:32 на 7 март, 2024 год.
Обявата е посетена 14 пъти.
Площ:
151 m2
Строителство:
Тухла,

Описание на имота:


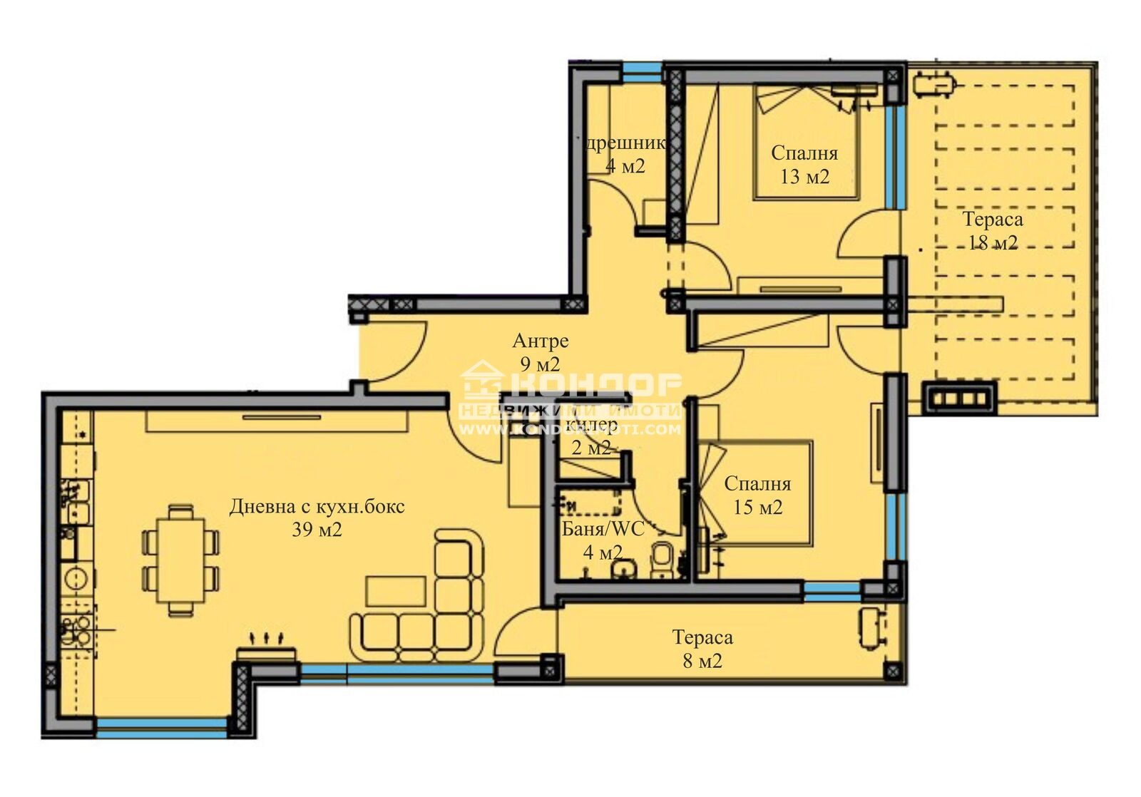
Оферта 63827: Представяме Ви новоизграждаща се малка и луксозна сграда от типа на Фамилна къща, проектирана така, че да създаде максимален комфорт и уют. Сградата се намира на тихо и спокойно място в близост до всички необходими комуникации с отличен и лесен достъп към централната част на града. Жилището се състои от просторна слънчева дневна с трапезария и кухненски бокс 39кв.м., две самостоятелни спални 13 и 15кв.м., баня с тоалетна, втора тоалетна, килер, дрешник, входно антре и две панорамни тераси. Обектът се строи от фирма с доказан опит, като разполагаме с готови сгради и можем да Ви покажем качеството на изпълнение, което се осъществява с висококачествени материали и съвременни технологии, по европейски стандарт, петкамерна PVC дограма, червена Австрийска Тухла, масивна Блиндирана входна врата с 4-странно заключване, сензорно осветление, хидравлични асансьори с огледална кабина. Свободни подземни Гаражи и паркоместа в двора на цени от 8500 евро !!! Възможност за разсрочено плащане в рамките на строителството или закупуване чрез Банков Кредит!!! ЧУДЕСНА ИНВЕСТИЦИЯ предвид качеството на строителство, което може да видите на снимките в Галерия, взети от други готови сгради на строителя. Възползвайте се от възможността да живеете в малка бутикова сграда!!!ВИЖТЕ ОЩЕ ИЗГОДНИ ОФЕРТИ НА https://www.kondorimoti.com/ С ЕЖЕДНЕВНА АКТУАЛИЗАЦИЯ!
Особености
Тухла
За контакт:
0897777032

Този имот се предлага само на частни лица
Брокер:
Кондор Имоти
0897777032
Още оферти от брокера: Продава | Дава под наем | Купува | Наема
Агенция:
КОНДОР - НЕДВИЖИМИ ИМОТИ
0897 777 032 , 0893 554 200;
КОНДОР - НЕДВИЖИМИ ИМОТИ logo
Медал за прослужено време
В imot.bg от 2004 г.
kondor.imot.bg
Адрес:
област Пловдив, гр. Пловдив, ул.Петко Д.Петков 23,ет.4 /до ТЦ Гранд/
http://www.kondorimoti.com
ИЗПРАТИ ЗАПИТВАНЕ
ИЗПРАТИ ЗАПИТВАНЕТО

Продава 3-СТАЕН
град Пловдив, Остромила
Обява: 1c170981833207711

146 090 €
285 727.20 лв.
История на цената
(967 €, 1 891.29 лв./m2)

Цената е с включено ДДС
ЗАПАЗИ ОБЯВАТА

Местоположение: град Пловдив, Остромила

Допълнителни данни за имотите в района и сравнение с други райони

Покажи

Период

и 5 месеца

* Средните цени са определени чрез медианна стойност