Обяви 3 За нас Контакти
Продава 3-СТАЕН
град Пловдив, Център
ц. Света Петка
154 630 €
302 429.99 лв.

(1 247 €, 2 438.92 лв./m2)
Цената е с включено ДДС
История на цената
Публикувана в 9:35 на 20 декември, 2023 год.
Обявата е посетена 163 пъти.
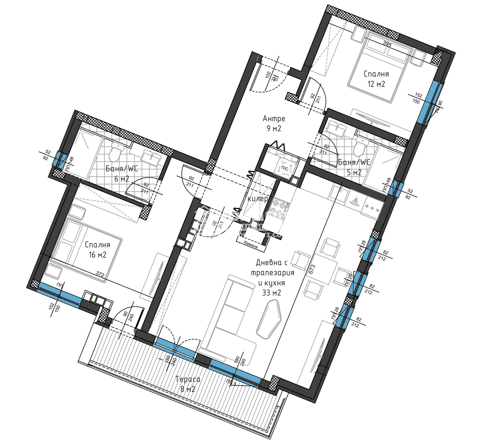
Площ:
124 m2
Етаж:
5-ти от 5
Строителство:
Тухла,

Описание на имота:


Оферта 63352: Специално предложение - ТОП ОФЕРТА !!! Нова Малка Сграда, разположена в Централна градска част в близост до църквата Света Петка !!! Предлагаме на Вашето внимание тристаен апартамент, състоящ се от ъглова югоизточна дневна 33кв.м. с трапезария и кухненски бокс, две големи самостоятелни спални: детска 12кв.м. и родителска 16кв.м. със собствена баня, втора баня с тоалетна, входно антре с дрешник и килер, подходящ за перално помещение и една тераса. Сградата е проектирана с изключително нисък процент общи части - 12.50%, което дава повече реална площ на бъдещите ползватели. Изгражда се в унисон с най-високите европейски стандарти за качество. Използваните материали са съобразени с най-новите тенденции в строителството - модерна външна облицовка, покривна и фасадна изолация, PVC пет камерна дограма, луксозни общи части и др. допринасят допълнително за усещането за лукс и комфорт на обитателите. За удобството на своите собственици, сградата разполага с Гаражи партерно ниво и Паркоместа в двора. Начин на плащане - Кондор имоти предлага възможност за банково финансиране от водещи банки на преференциални условия. Разсрочено плащане в рамките на строителството. ВИЖТЕ ОЩЕ ИЗГОДНИ ОФЕРТИ НА https://www.kondorimoti.com/ С ЕЖЕДНЕВНА АКТУАЛИЗАЦИЯ!
Особености
Тухла
За контакт:
0897777032

Този имот се предлага само на частни лица
Брокер:
Кондор Имоти
0897777032
Още оферти от брокера: Продава | Дава под наем | Купува | Наема
Агенция:
КОНДОР - НЕДВИЖИМИ ИМОТИ
0897 777 032 , 0893 554 200;
КОНДОР - НЕДВИЖИМИ ИМОТИ logo
Медал за прослужено време
В imot.bg от 2004 г.
kondor.imot.bg
Адрес:
област Пловдив, гр. Пловдив, ул.Петко Д.Петков 23,ет.4 /до ТЦ Гранд/
http://www.kondorimoti.com
ИЗПРАТИ ЗАПИТВАНЕ
ИЗПРАТИ ЗАПИТВАНЕТО

Продава 3-СТАЕН
град Пловдив, Център
ц. Света Петка
Обява: 1c170305775177861

154 630 €
302 429.99 лв.
История на цената
(1 247 €, 2 438.92 лв./m2)

Цената е с включено ДДС
ЗАПАЗИ ОБЯВАТА

Местоположение: град Пловдив, Център, ц. Света Петка

Допълнителни данни за имотите в района и сравнение с други райони

Покажи

Период

и 5 месеца

* Средните цени са определени чрез медианна стойност