Обяви 3 За нас Контакти
Продава 3-СТАЕН
град Пловдив, Тракия
102 200 €
199 885.83 лв.

(983 €, 1 922.58 лв./m2)
Цената е с включено ДДС
Коригирана в 9:29 на 28 декември, 2023 год.
Обявата е посетена 473 пъти.
Площ:
104 m2
Етаж:
8-ми от 9
Строителство:
Тухла,

Описание на имота:


Оферта 58073:
Специално предложение - Имаме удоволствието да Ви предложим новоизграденият ни проект, ситуиран в най-бързо развиващия се квартал на града - Тракия.
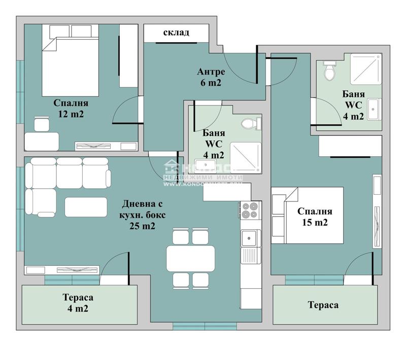
Разпределения - Тристаен апартамент, състоящ се от светла ъглова дневна с множество прозорци с трапезария и кухненски бокс - 25 м2, имаща излаз на тераса, просторна родителска спалня - 15 м2 със собствена втора тераса и прилежаща баня с тоалетна, детска стая -12 м2, второ санитарно помещение и входно антре с обособен кът за пералня.
Материали - Жилищата се издават съобразно всички изисквания на БДС: стени и тавани с гипсова мазилка, под - циментова замазка, петкамерна шумоизолирана дограма с високи изолационни показатели за ниски енергийни разходи, изградени ВиК и електроинсталации, осигурена оптична интернет връзка и масивна входна врата.
Локация - Разположението - в сърцето на Тракия, както и наличието в близост на училища, детски градини, административни сгради и спирки от градския транспорт, допълнително внасят комфорт в ежедневието на модерния градски човек.
Допълнителни екстри - Луксозните общи части, безшумните хидравлични асансьори, контролираният посетителски достъп и видеонаблюдението са само част от удобствата за хората. Предвидените в проекта детски площадки, площадки за домашни любимци и търговски площи, допълнително спомагат за модерния облик и функционалност на сградата. Опция за закупуване на подземни гаражи и паркоместа.
Начин на плащане - Възможност за разсрочено плащане в рамките на строителството. Кондор имоти осигурява съдействие за банково финансиране. Приложените 3D изображения са илюстративни.
ВИЖТЕ ОЩЕ ИЗГОДНИ ОФЕРТИ НА https://www.kondorimoti.com/ С ЕЖЕДНЕВНА АКТУАЛИЗАЦИЯ!
Особености
Тухла
За контакт:
0894322182

Този имот се предлага само на частни лица
Брокер:
Димитър Димитров
0894322182
Още оферти от брокера: Продава | Дава под наем | Купува | Наема
Агенция:
КОНДОР - НЕДВИЖИМИ ИМОТИ
0897 777 032 , 0893 554 200;
КОНДОР - НЕДВИЖИМИ ИМОТИ logo
Медал за прослужено време
В imot.bg от 2004 г.
kondor.imot.bg
Адрес:
област Пловдив, гр. Пловдив, ул.Петко Д.Петков 23,ет.4 /до ТЦ Гранд/
http://www.kondorimoti.com
ИЗПРАТИ ЗАПИТВАНЕ
ИЗПРАТИ ЗАПИТВАНЕТО

Продава 3-СТАЕН
град Пловдив, Тракия
Обява: 1c164915328389364

102 200 €
199 885.83 лв.
(983 €, 1 922.58 лв./m2)

Цената е с включено ДДС
ЗАПАЗИ ОБЯВАТА

Местоположение: град Пловдив, Тракия

Допълнителни данни за имотите в района и сравнение с други райони

Покажи

Период

и 5 месеца

* Средните цени са определени чрез медианна стойност