Обяви 3 За нас Контакти
Продава 2-СТАЕН
град Пловдив, Тракия
125 900 €
246 239.00 лв.

(1 773 €, 3 467.69 лв./m2)
Не се начислява ДДС
История на цената
Коригирана в 8:58 на 24 април, 2026 год.
Обявата е посетена 273 пъти.
Площ:
71 m2
Строителство:
Тухла, Ще бъде въведен в експлоатация 2027 г.

Описание на имота:


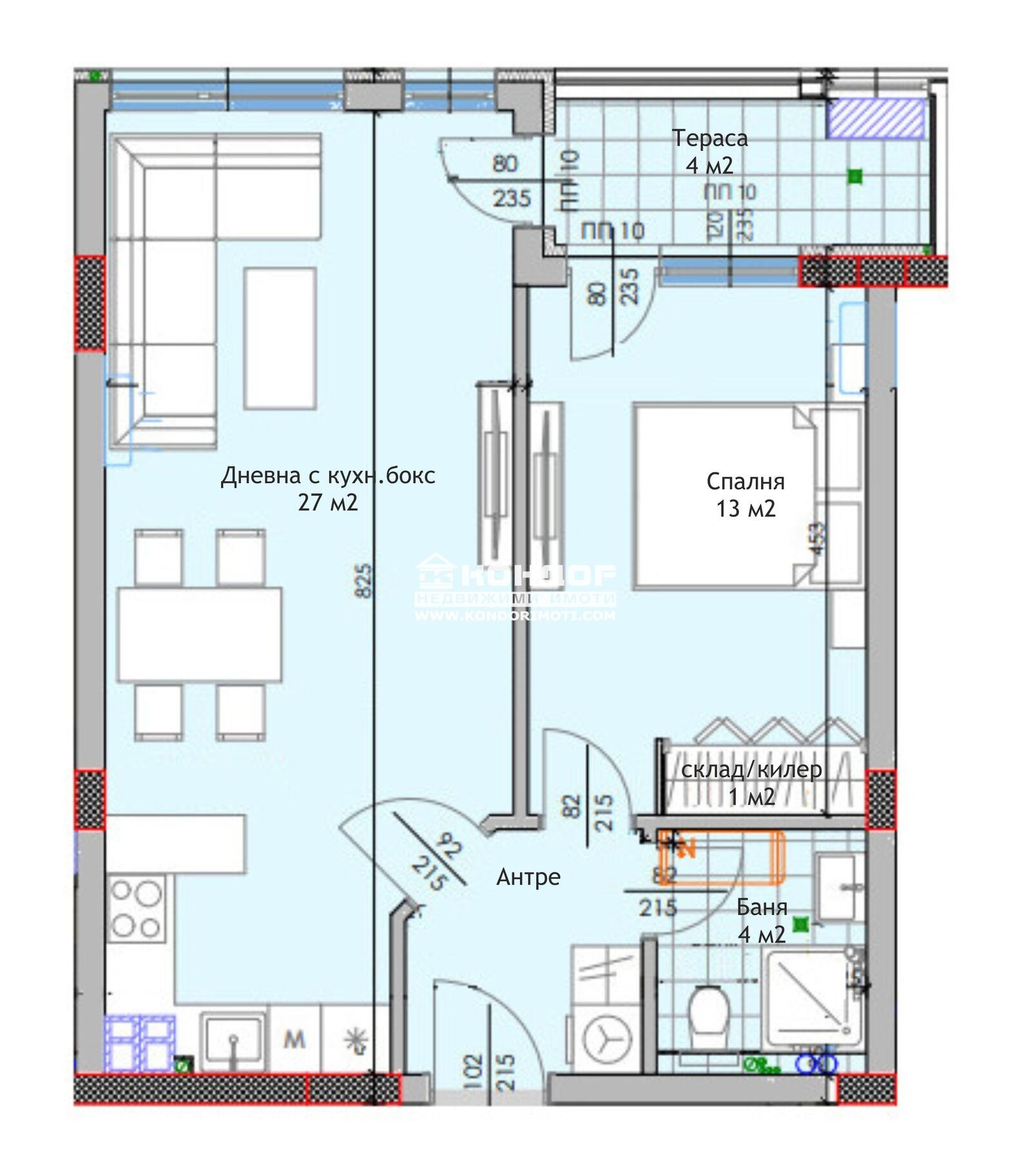
Оферта 68494 - Предлагаме ви възможността да закупите вътрешен двустаен апартамент в един от най-обещаващите проекти за Жилищен комплекс в квартал Тракия, проектиран през последните години. Жилището се състои от дневна с трапезария и кухненски бокс - 27кв.м., самостоятелна спалня 13кв.м., баня с тоалетна, входно антре с място за гардероб, килер/перално помещение и една тераса обща за двете стаи. При проектирането е заложено на функционални жилища с просторни стаи, високо качество на изпълнение с материали от най-висок клас, като обектът се изпълнява от една от наложилите се на пазара строителни компании с безупречен имидж. Комплексът е разположен е в самото сърце на кв. Тракия, който е с най-добре развита инфраструктура, в непосредствена близост до детски градини, училища, паркове, обществен транспорт и бърз и лесен достъп към централната част на града. Комплексът разполага с внушителните 13 700м2 вътрешен озеленен двор, в който има детски площадки, стрийт фитнес и зони за отдих. Парко местата са обезпечени на 100%, има изградени системи за видео наблюдение и контрол на достъп.
Особености
Тухла
За контакт:
0896720456

Този имот се предлага само на частни лица
Брокер:
Ирена Галинчева
0896 720 456
Още оферти от брокера: Продава | Дава под наем | Купува | Наема
Агенция:
КОНДОР - НЕДВИЖИМИ ИМОТИ
0897 777 032 , 0893 554 200;
КОНДОР - НЕДВИЖИМИ ИМОТИ logo
Медал за прослужено време
В imot.bg от 2004 г.
kondor.imot.bg
Адрес:
област Пловдив, гр. Пловдив, ул.Петко Д.Петков 23,ет.4 /до ТЦ Гранд/
http://www.kondorimoti.com
ИЗПРАТИ ЗАПИТВАНЕ
ИЗПРАТИ ЗАПИТВАНЕТО

Продава 2-СТАЕН
град Пловдив, Тракия
Обява: 1b177453435771908

125 900 €
246 239.00 лв.
История на цената
(1 773 €, 3 467.69 лв./m2)

Не се начислява ДДС
ЗАПАЗИ ОБЯВАТА

Местоположение: град Пловдив, Тракия

Допълнителни данни за имотите в района и сравнение с други райони

Покажи

Период

и 5 месеца

* Средните цени са определени чрез медианна стойност