Обяви За нас Контакти
Продава 2-СТАЕН
град Пловдив, Кючук Париж
Белите брези
138 140 €
270 178.36 лв.

(1 705 €, 3 334.69 лв./m2)
Цената е с включено ДДС
История на цената
Публикувана в 15:15 на 20 февруари, 2026 год.
Обявата е посетена 52 пъти.
Площ:
81 m2
Етаж:
5-ти от 6
Строителство:
Тухла, Ще бъде въведен в експлоатация 2027 г.

Описание на имота:


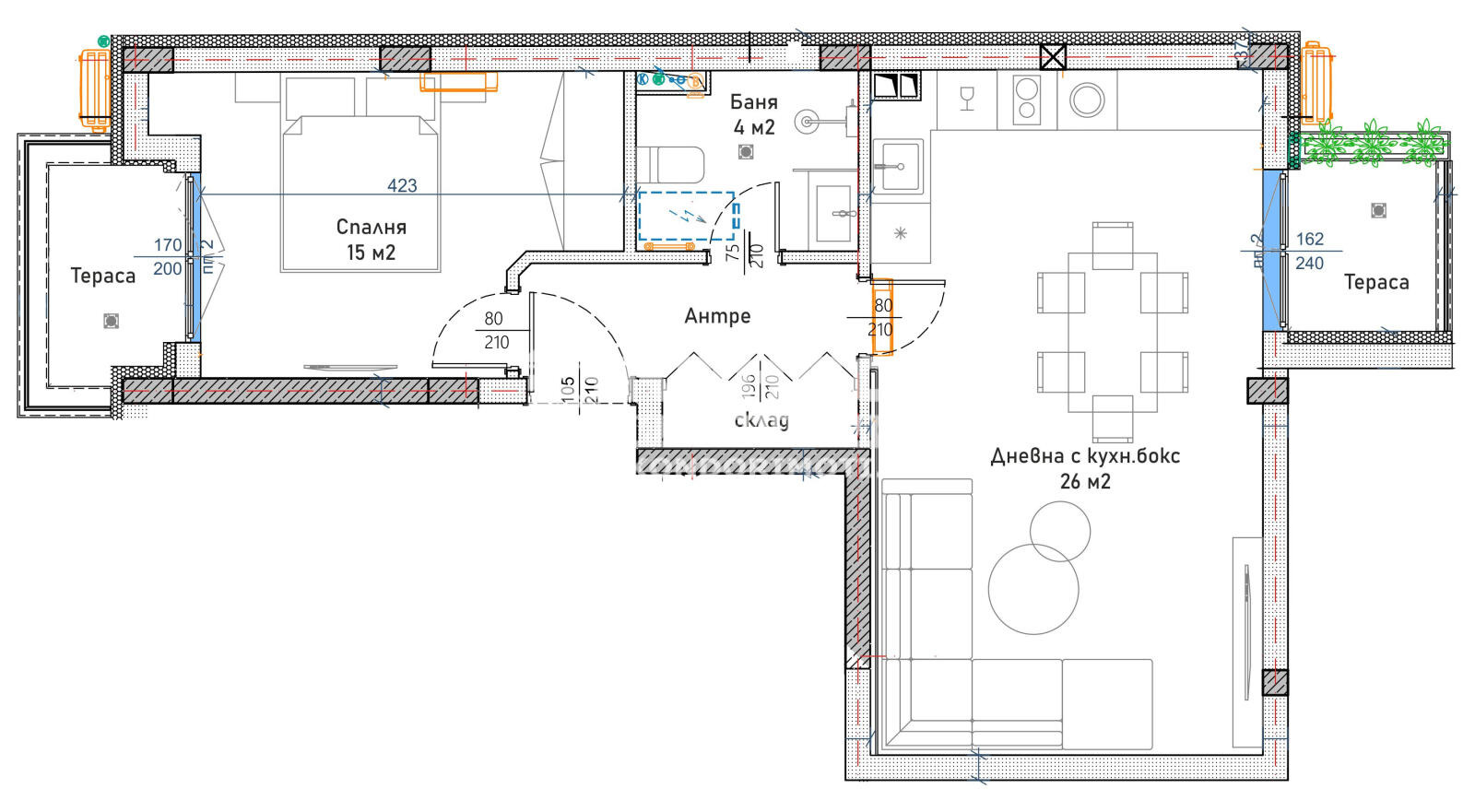
Оферта 68890 - Представяме ви малка елегантна жилищна сграда, съчетаваща уют и комфорт в една от най-предпочитаните части на кв. Кючук Париж в непосредствена близост до парк Белите брези . Локацията съчетава спокойна жилищна среда, зеленина и бърз достъп до централната част на Пловдив. Двустаен апартамент, състои се от 26кв.м. дневна с кът за хранене и кухненска част, самостоятелна спалня с излаз на тераса, баня с тоалетна, килер/перално помещение, входно антре и още една тераса към дневната. Сградата е пететажна, с модерна архитектура и ограничен брой жилища само по два апартамента на етаж. Общият брой на апартаментите е 9, което осигурява повече уединение и комфорт за живущите. Разпределенията са функционални, с правилни форми на помещенията, просторни дневни зони и големи френски прозорци, които осигуряват отлична осветеност през целия ден. Всеки апартамент разполага с удобна тераса. На партерно ниво са предвидени гаражи, гарантиращи сигурност и удобство. Районът предлага отлична инфраструктура в близост се намират училища, детски градини, магазини, спирки на градски транспорт и зелени площи. Подходящ както за семейно жилище, така и за дългосрочна инвестиция.
Особености
Тухла
За контакт:
0893310100

Този имот се предлага само на частни лица
Брокер:
Женя Цанкова
0893310100
Още оферти от брокера: Продава | Дава под наем | Купува | Наема
Агенция:
КОНДОР - НЕДВИЖИМИ ИМОТИ
0897 777 032 , 0893 554 200;
КОНДОР - НЕДВИЖИМИ ИМОТИ logo
Медал за прослужено време
В imot.bg от 2004 г.
kondor.imot.bg
Адрес:
област Пловдив, гр. Пловдив, ул.Петко Д.Петков 23,ет.4 /до ТЦ Гранд/
http://www.kondorimoti.com
ИЗПРАТИ ЗАПИТВАНЕ
ИЗПРАТИ ЗАПИТВАНЕТО

Продава 2-СТАЕН
град Пловдив, Кючук Париж
Белите брези
Обява: 1b177159334517516

138 140 €
270 178.36 лв.
История на цената
(1 705 €, 3 334.69 лв./m2)

Цената е с включено ДДС
ЗАПАЗИ ОБЯВАТА

Местоположение: град Пловдив, Кючук Париж, Белите брези

Допълнителни данни за имотите в района и сравнение с други райони

Покажи

Период

и 3 месеца

* Средните цени са определени чрез медианна стойност