Обяви За нас Контакти
Продава 2-СТАЕН
град Пловдив, Кършияка
х-л Ст.Петербург
100 370 €
196 306.66 лв.

(1 593 €, 3 115.64 лв./m2)
Цената е с включено ДДС
История на цената
Публикувана в 10:05 на 11 февруари, 2026 год.
Обявата е посетена 97 пъти.
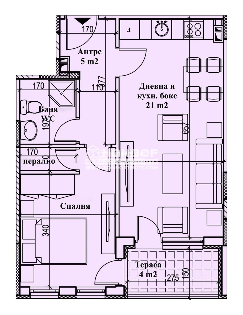
Площ:
63 m2
Етаж:
8-ми от 10
Строителство:
Тухла, Ще бъде въведен в експлоатация 2026 г.

Описание на имота:


Оферта 68840 - Предлагаме ви възможността да закупите просторни и светли апартаменти, намиращи се в сграда със съвременна архитектура с иновативна визия, съчетаваща модерни технологии с качествени материали на строителство, позиционирана в самото сърце на квартал Кършияка!!! Апартаментите са с отлично разпределение !!! Жилището, което ви предлагаме е вътрешно с изцяло южно изложение и се състои от дневна с трапезария и кухненски бокс, напълно самостоятелна спалня, баня с тоалетна, перално, входно антре и обща тераса. Сградата се строи от реномирана фирма с множество готови сгради в града, като можем да ви покажем качеството на изпълнение и материалите които се използват. Жилищата се отвършват според всички изисквания за качествено строителство, хидравличен асансьор, блиндирани входни врати, висок клас ПВЦ - дограма. Свободни Паркоместа и Гаражи на партерно ниво. Разсрочено плащане в рамките на строителството. СТРАХОТНА ИНВЕСТИЦИЯ!
Особености
Тухла
За контакт:
0894322182

Този имот се предлага само на частни лица
Брокер:
Димитър Димитров
0894322182
Още оферти от брокера: Продава | Дава под наем | Купува | Наема
Агенция:
КОНДОР - НЕДВИЖИМИ ИМОТИ
0897 777 032 , 0893 554 200;
КОНДОР - НЕДВИЖИМИ ИМОТИ logo
Медал за прослужено време
В imot.bg от 2004 г.
kondor.imot.bg
Адрес:
област Пловдив, гр. Пловдив, ул.Петко Д.Петков 23,ет.4 /до ТЦ Гранд/
http://www.kondorimoti.com
ИЗПРАТИ ЗАПИТВАНЕ
ИЗПРАТИ ЗАПИТВАНЕТО

Продава 2-СТАЕН
град Пловдив, Кършияка
х-л Ст.Петербург
Обява: 1b177079712575685

100 370 €
196 306.66 лв.
История на цената
(1 593 €, 3 115.64 лв./m2)

Цената е с включено ДДС
ЗАПАЗИ ОБЯВАТА

Местоположение: град Пловдив, Кършияка, х-л Ст.Петербург

Допълнителни данни за имотите в района и сравнение с други райони

Покажи

Период

и 3 месеца

* Средните цени са определени чрез медианна стойност