Обяви За нас Контакти
Продава 2-СТАЕН
град Пловдив, Кючук Париж
Пощата
113 400 €
221 791.12 лв.

(1 553 €, 3 037.40 лв./m2)
Цената е с включено ДДС
История на цената
Коригирана в 14:26 на 7 април, 2026 год.
Обявата е посетена 348 пъти.
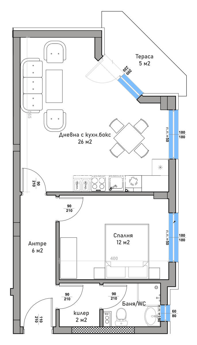
Площ:
73 m2
Етаж:
2-ри от 5
Строителство:
Тухла, Ще бъде въведен в експлоатация 2027 г.

Описание на имота:


Оферта 68836 - Предлагаме ви двустаен апартамент в новоизграждаща се малка бутикова сграда, разположена на тихо и спокойно място в сърцето на кв. Въстанически! Жилището се състои от просторна дневна с площ от 26 кв.м., една самостоятелна спалня с площ от 12кв.м., входно антре, баня с тоалетна, килер/перално и една тераса към дневната. Изпълнението е с висококачествени материали, отговарящи на всички съвременни изисквания: червена тухла, 6 -камерна ПВЦ дограма с дървесен цвят, топло и хидроизолация - 10см. , масивна входна блиндирана врата. Общите части и терасите ще са луксозно завършени с гранит, иноксови парапети и врачански камък. Сградата е се намира в близост до парк, детска градина, училище и удобен транспорт към централна градска част. Свободни външни Паркоместа, подземни Гаражи и партерни Гаражи. Разсрочено плащане в рамките на Строителството и възможност за закупуване чрез Банков Кредит !!! Приложените изображения са от готова сграда на строителната компания!

Особености
Тухла
За контакт:
0897777032

Този имот се предлага само на частни лица
Брокер:
Кондор Имоти
0897777032
Още оферти от брокера: Продава | Дава под наем | Купува | Наема
Агенция:
КОНДОР - НЕДВИЖИМИ ИМОТИ
0897 777 032 , 0893 554 200;
КОНДОР - НЕДВИЖИМИ ИМОТИ logo
Медал за прослужено време
В imot.bg от 2004 г.
kondor.imot.bg
Адрес:
област Пловдив, гр. Пловдив, ул.Петко Д.Петков 23,ет.4 /до ТЦ Гранд/
http://www.kondorimoti.com
ИЗПРАТИ ЗАПИТВАНЕ
ИЗПРАТИ ЗАПИТВАНЕТО

Продава 2-СТАЕН
град Пловдив, Кючук Париж
Пощата
Обява: 1b177071537490263

113 400 €
221 791.12 лв.
История на цената
(1 553 €, 3 037.40 лв./m2)

Цената е с включено ДДС
ЗАПАЗИ ОБЯВАТА

Местоположение: град Пловдив, Кючук Париж, Пощата

Допълнителни данни за имотите в района и сравнение с други райони

Покажи

Период

и 4 месеца

* Средните цени са определени чрез медианна стойност