Обяви За нас Контакти
Продава 2-СТАЕН
град Пловдив, Христо Смирненски
маг. 'Лекси'
97 880 €
191 436.64 лв.

(1 506 €, 2 945.48 лв./m2)
Не се начислява ДДС
История на цената
Публикувана в 11:28 на 6 февруари, 2026 год.
Обявата е посетена 46 пъти.
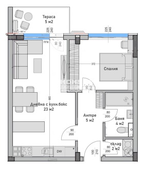
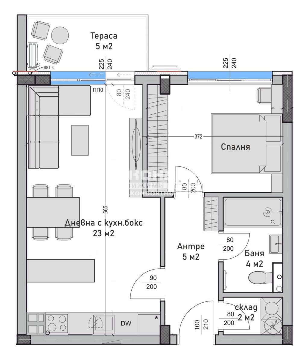
Площ:
65 m2
Строителство:
Тухла, Ще бъде въведен в експлоатация 2027 г.

Описание на имота:


Оферта 68816 - Предлагаме на вашето внимание двустаен вътрешен апартамент в новоизградена, иновативна и модерна сграда със собствен стил с изчистена визия, проектирана така, че да създаде максимален комфорт и уют за живеене. Жилището се състои от дневна 23кв.м. с трапезария и кухненски бокс, една самостоятелна спалня, баня с тоалетна, перално, антре и една тераса към дневната. Проектът предвижда застрояване, просторни и панорамни жилища, вътрешен двор с оформени зелени зони за релакс и почивка. Сградата привлича вниманието със своята локация, разположена в близост до Гребна база и парк Отдих и култура, обособили се като едни от най-развиващите се и предпочитани райони за живеене в града, както и до няколко от най-добрите болници, а именно ( Пълмед, Селена, Хирургиите ). В близост до сградата има големи хранителни магазини, детска градина, училище, автобусни спирки и всичко необходимо за едно нормално ежедневие. Инвеститора осъществява сгради, които задават нов стандарт в жилищното строителство. Комбинирайки модерни технологии, безкомпромисно качество и прецизен дизайн, за да осигурим среда, която предлага комфорт, естетика и функционалност. Сградата ще бъде с ИЗЦЯЛО окачена, ВЕНТЛИРУЕМА ФАСАДА с енергийна ефективност от висок клас, система УМЕН ДОМ, високоскоростни асансьори, както и към всяко паркомясто ще има прекаран трифазен ток за поставяне на ЗАРЯДНА СТАНЦИЯ за електроавтомобили, Видеонаблюдение, най-висок клас блиндирани врати за висока степен на сигурност, master key система за още по-сигурен контрол на достъп, автоматизирани системи против пожари , които осигуряват бърза реакция в случай на необходимост. Паркирането е решено с голям подземен както и надземен паркинг като има голям избор на паркоместа и гаражи. Гъвкави схеми на разсрочено плащане в рамките на строителството, както и съдействие за банково кредитиране с изключително изгодни условия за клиенти на агенция !!!
Особености
Тухла
За контакт:
0896720452

Този имот се предлага само на частни лица
Брокер:
Христо Трифонов
0896720455
Още оферти от брокера: Продава | Дава под наем | Купува | Наема
Агенция:
КОНДОР - НЕДВИЖИМИ ИМОТИ
0897 777 032 , 0893 554 200;
КОНДОР - НЕДВИЖИМИ ИМОТИ logo
Медал за прослужено време
В imot.bg от 2004 г.
kondor.imot.bg
Адрес:
област Пловдив, гр. Пловдив, ул.Петко Д.Петков 23,ет.4 /до ТЦ Гранд/
http://www.kondorimoti.com
ИЗПРАТИ ЗАПИТВАНЕ
ИЗПРАТИ ЗАПИТВАНЕТО

Продава 2-СТАЕН
град Пловдив, Христо Смирненски
маг. 'Лекси'
Обява: 1b177037012856651

97 880 €
191 436.64 лв.
История на цената
(1 506 €, 2 945.48 лв./m2)

Не се начислява ДДС
ЗАПАЗИ ОБЯВАТА

Местоположение: град Пловдив, Христо Смирненски, маг. 'Лекси'

Допълнителни данни за имотите в района и сравнение с други райони

Покажи

Период

и 2 месеца

* Средните цени са определени чрез медианна стойност