Обяви За нас Контакти
Продава 2-СТАЕН
град Пловдив, Христо Смирненски
маг. 'Лекси'
197 400 €
386 080.84 лв.

(1 702 €, 3 328.82 лв./m2)
Цената е с включено ДДС
История на цената
Коригирана в 12:29 на 2 февруари, 2026 год.
Обявата е посетена 203 пъти.
Площ:
116 m2
Строителство:
Тухла, Въведен в експлоатация

Описание на имота:


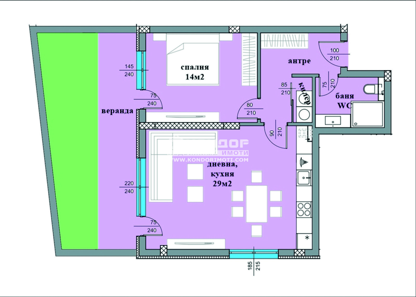
Оферта 55354 - ТОП ОФЕРТА !!! Предлагаме Ви възможността да закупите НАПЪЛНО ЗАВЪРШЕН И СТИЛНО ОБЗАВЕДЕН ДВУСТАЕН АПАРТАМЕНТ в нов модерен комплекс с Акт 16 , разположен в един от най-предпочитаните напоследък райони за живеене - парк Отдих и Култура, проектиран с концепцията да създаде максимален комфорт на живеене, съчетаващ високо качество, страхотна визия, стил и архитектура, голям вътрешен озеленен двор с детски площадки и места за отдих и релакс , както и много допълнителни екстри !!! Функционален, 2-стаен апартамент с перфектно разпределение, състоящ се от просторна югозападна дневна-29кв.м. с трапезария и светъл кухненски бокс с излаз на веранда - 12 кв.м и тревна площ - 14 кв.м., удобна спалня с възможност за голям гардероб - 14 кв.м, баня с тоалетна - 5 кв.м, предверие и склад. Жилището се продава напълно мебелирано и оборудвано с всички необходими електроуреди и Климатици , като са използвани материали от висок клас. Изпълнението на сградата е осъществено с висококачествени материали и съвременни технологии по европейски стандарт, шесткамерна PVC дограма, масивна блиндирана входна врата с 4-странно заключване, интериорни МДФ-врати, прекарани климатични инсталации , сензорно осветление, хидравлични асансьори с огледална кабина. Сградата се намира в един от най-зелените райони с перфектна локация, с обширна паркова среда, Мол Пловдив и обновения спортен комплекс на Гребна База правят имота особено подходящ, както за живеене, така и за отдаване под наем. Възможност за закупуване на ПОДЗЕМНИ ГАРАЖИ !!! Към жилището има и прилежаща изба, включена в цената. Възможност за закупуване с Банков кредит, като обекта се финансира от всички водещи банки, което дава възможност за банков кредит с изключително добри условия.
Особености
Тухла
За контакт:
0897777032

Този имот се предлага само на частни лица
Брокер:
Кондор Имоти
0897777032
Още оферти от брокера: Продава | Дава под наем | Купува | Наема
Агенция:
КОНДОР - НЕДВИЖИМИ ИМОТИ
0897 777 032 , 0893 554 200;
КОНДОР - НЕДВИЖИМИ ИМОТИ logo
Медал за прослужено време
В imot.bg от 2004 г.
kondor.imot.bg
Адрес:
област Пловдив, гр. Пловдив, ул.Петко Д.Петков 23,ет.4 /до ТЦ Гранд/
http://www.kondorimoti.com
ИЗПРАТИ ЗАПИТВАНЕ
ИЗПРАТИ ЗАПИТВАНЕТО

Продава 2-СТАЕН
град Пловдив, Христо Смирненски
маг. 'Лекси'
Обява: 1b176518305734951

197 400 €
386 080.84 лв.
История на цената
(1 702 €, 3 328.82 лв./m2)

Цената е с включено ДДС
ЗАПАЗИ ОБЯВАТА

Местоположение: град Пловдив, Христо Смирненски, маг. 'Лекси'

Допълнителни данни за имотите в района и сравнение с други райони

Покажи

Период

и 2 месеца

* Средните цени са определени чрез медианна стойност