Обяви За нас Контакти
Продава 2-СТАЕН
град Пловдив, Център
Суперцентър
140 620 €
275 028.81 лв.

(2 099 €, 4 105.29 лв./m2)
Цената е с включено ДДС
История на цената
Коригирана в 10:57 на 10 декември, 2025 год.
Обявата е посетена 235 пъти.
Площ:
67 m2
Етаж:
4-ти от 5
Строителство:
Тухла, Ще бъде въведен в експлоатация 2028 г.

Описание на имота:


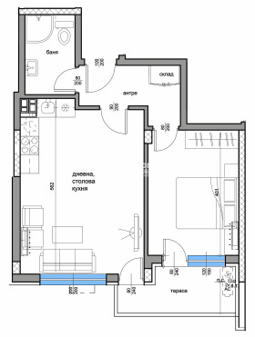
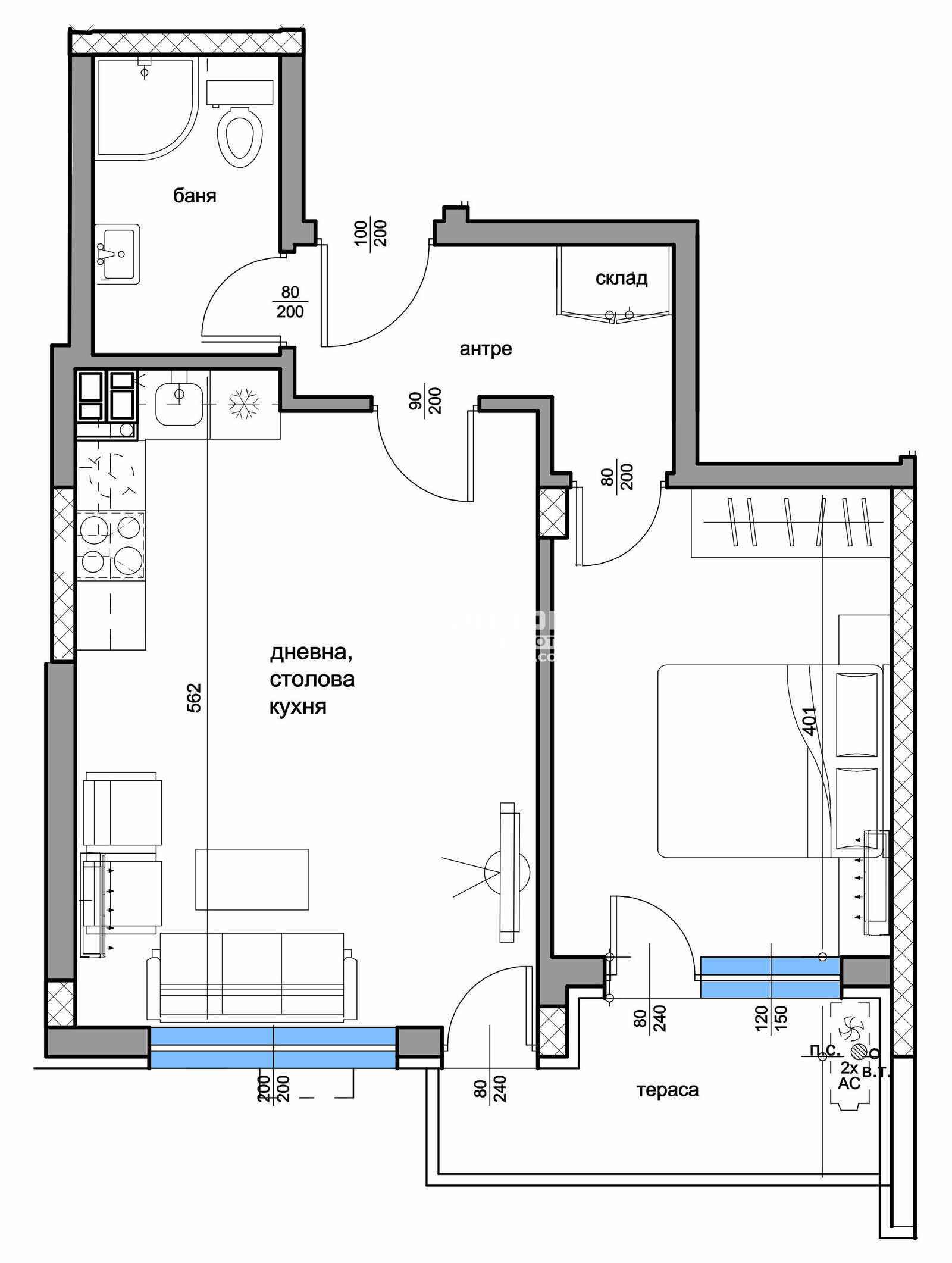
Оферта 68259 - Представяме ви уникална възможност да станете собственик на апартамент в нова бутикова сграда, разположена в сърцето на града до Семинарията! Сградата предлага съвременен дизайн, висококачествени материали и удобства, които ще задоволят и най-взискателните купувачи. Жилището е с ИЗЦЯЛО ЮЖНО изложение и се състои от дневна с кухненска част, спалня, входно антре, баня с тоалетна и тераса обща за двете стаи.

Основни предимства:

- Изключителна локация: Само на 5минути пеша от Капана, пешеходната градска улица и Старинен Пловдив!

-Иновативна архитектура в Средиземноморски стил: Апартаментите са проектирани с внимание към детайла, осигурявайки уют и комфорт.

- Висококачествени материали: Използвани са само най-добрите строителни и довършителни материали, немски безшумен асансьор, луксозно отвършени общи части и фоайе, 5-камерна всесезонна дограма, парапети от масивно ковано желязо и много други екстри осигуряващи дълготрайност и стил.

- Разнообразие от площи: Предлагаме апартаменти с различни квадратури и разпределения, подходящи както за единични лица, така и за семейства.

- Паркирането е решено на две нива: Възможност за закупуване на паркоместа ,единични и двойни гаражи.

-Начин на плащане: Разсрочено плащане в рамките на строителството съобразено с възможностите на клиента.

Не пропускайте възможността да живеете в апартамент, който съчетава удобството на градския живот с уюта на дом!
Особености
Тухла
За контакт:
0897777032

Този имот се предлага само на частни лица
Брокер:
Кондор Имоти
0897777032
Още оферти от брокера: Продава | Дава под наем | Купува | Наема
Агенция:
КОНДОР - НЕДВИЖИМИ ИМОТИ
0897 777 032 , 0893 554 200;
КОНДОР - НЕДВИЖИМИ ИМОТИ logo
Медал за прослужено време
В imot.bg от 2004 г.
kondor.imot.bg
Адрес:
област Пловдив, гр. Пловдив, ул.Петко Д.Петков 23,ет.4 /до ТЦ Гранд/
http://www.kondorimoti.com
ИЗПРАТИ ЗАПИТВАНЕ
ИЗПРАТИ ЗАПИТВАНЕТО

Продава 2-СТАЕН
град Пловдив, Център
Суперцентър
Обява: 1b176293741850848

140 620 €
275 028.81 лв.
История на цената
(2 099 €, 4 105.29 лв./m2)

Цената е с включено ДДС
ЗАПАЗИ ОБЯВАТА

Местоположение: град Пловдив, Център, Суперцентър

Допълнителни данни за имотите в района и сравнение с други райони

Покажи

Период

* Средните цени са определени чрез медианна стойност