Обяви 3 За нас Контакти
Продава 2-СТАЕН
град Пловдив, Въстанически
Автогара Родопи
102 700 €
200 863.74 лв.

(1 407 €, 2 751.85 лв./m2)
Цената е с включено ДДС
История на цената
Коригирана в 14:44 на 30 юни, 2025 год.
Обявата е посетена 27 пъти.
Площ:
73 m2
Етаж:
3-ти от 6
Строителство:
Тухла, Ще бъде въведен в експлоатация 2026 г.

Описание на имота:


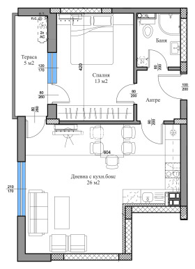
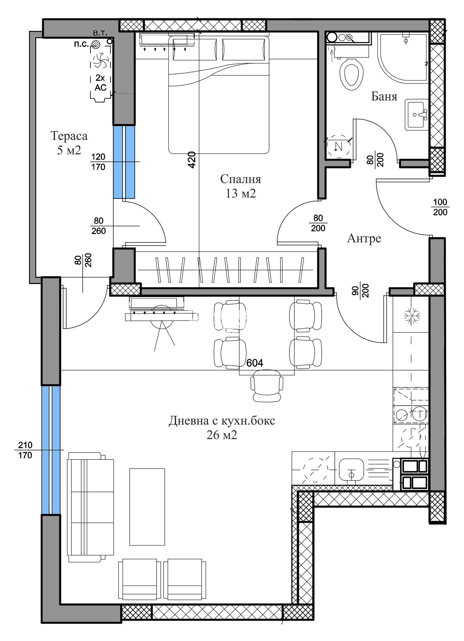
Оферта 66998: Предлагаме ви за продажба двустаен апартамент в новоизграждаща се луксозна сграда, отличаваща се със съвременна и стилна архитектура в един от най- развитите квартали на града, с Перфектна локация на приятно и спокойно място в близост до училища, детска градина, паркове и удобен транспорт - ОТЛИЧНА ИНВЕСТИЦИЯ !!! Жилището се състои от дневна с трапезария и кухненски бокс 26кв.м., една самостоятелна спалня 13кв.м., баня с WC, входно антре и една обща тераса. Към апартамента има прилежаща изба !!! Сградата се строи от строителна компания с дългогодишен опит в бранша с редица завършени обекта в града. Изпълнението е на изключително високо ниво. Жилищата ще бъдат завършени съгласно всички изисквания на съвременното строителство - блиндирана врата, 6 - камерна дограма, МДФ вътрешни интериорни врати. Сградата ще разполага с още: луксозно завършени общи части, италиански хидравличен асансьор, двойна хидро и топлоизолация. Можем да покажем готови сгради на същия строител,за да придобиете представа за качеството на изпълнение. Има възможност за закупуване на паркоместа , партерни и подземни Гаражи. Осигурено Банково Финансиране или изплащане на вноски в рамките на строителството !!!ВИЖТЕ ОЩЕ ИЗГОДНИ ОФЕРТИ НА https://www.kondorimoti.com/ С ЕЖЕДНЕВНА АКТУАЛИЗАЦИЯ!
Особености
Тухла
За контакт:
0897777032

Този имот се предлага само на частни лица
Брокер:
Кондор Имоти
0897777032
Още оферти от брокера: Продава | Дава под наем | Купува | Наема
Агенция:
КОНДОР - НЕДВИЖИМИ ИМОТИ
0897 777 032 , 0893 554 200;
КОНДОР - НЕДВИЖИМИ ИМОТИ logo
Медал за прослужено време
В imot.bg от 2004 г.
kondor.imot.bg
Адрес:
област Пловдив, гр. Пловдив, ул.Петко Д.Петков 23,ет.4 /до ТЦ Гранд/
http://www.kondorimoti.com
ИЗПРАТИ ЗАПИТВАНЕ
ИЗПРАТИ ЗАПИТВАНЕТО

Продава 2-СТАЕН
град Пловдив, Въстанически
Автогара Родопи
Обява: 1b174772204898989

102 700 €
200 863.74 лв.
История на цената
(1 407 €, 2 751.85 лв./m2)

Цената е с включено ДДС
ЗАПАЗИ ОБЯВАТА

Местоположение: град Пловдив, Въстанически, Автогара Родопи

Допълнителни данни за имотите в района и сравнение с други райони

Покажи

Период

и 5 месеца

* Средните цени са определени чрез медианна стойност