Обяви 3 За нас Контакти
Продава 2-СТАЕН
град Пловдив, Въстанически
Автогара Родопи
108 700 €
212 598.72 лв.

(1 449 €, 2 834.00 лв./m2)
Цената е с включено ДДС
Коригирана в 9:50 на 8 април, 2025 год.
Обявата е посетена 321 пъти.
Площ:
75 m2
Етаж:
5-ти от 6
Строителство:
Тухла,

Описание на имота:


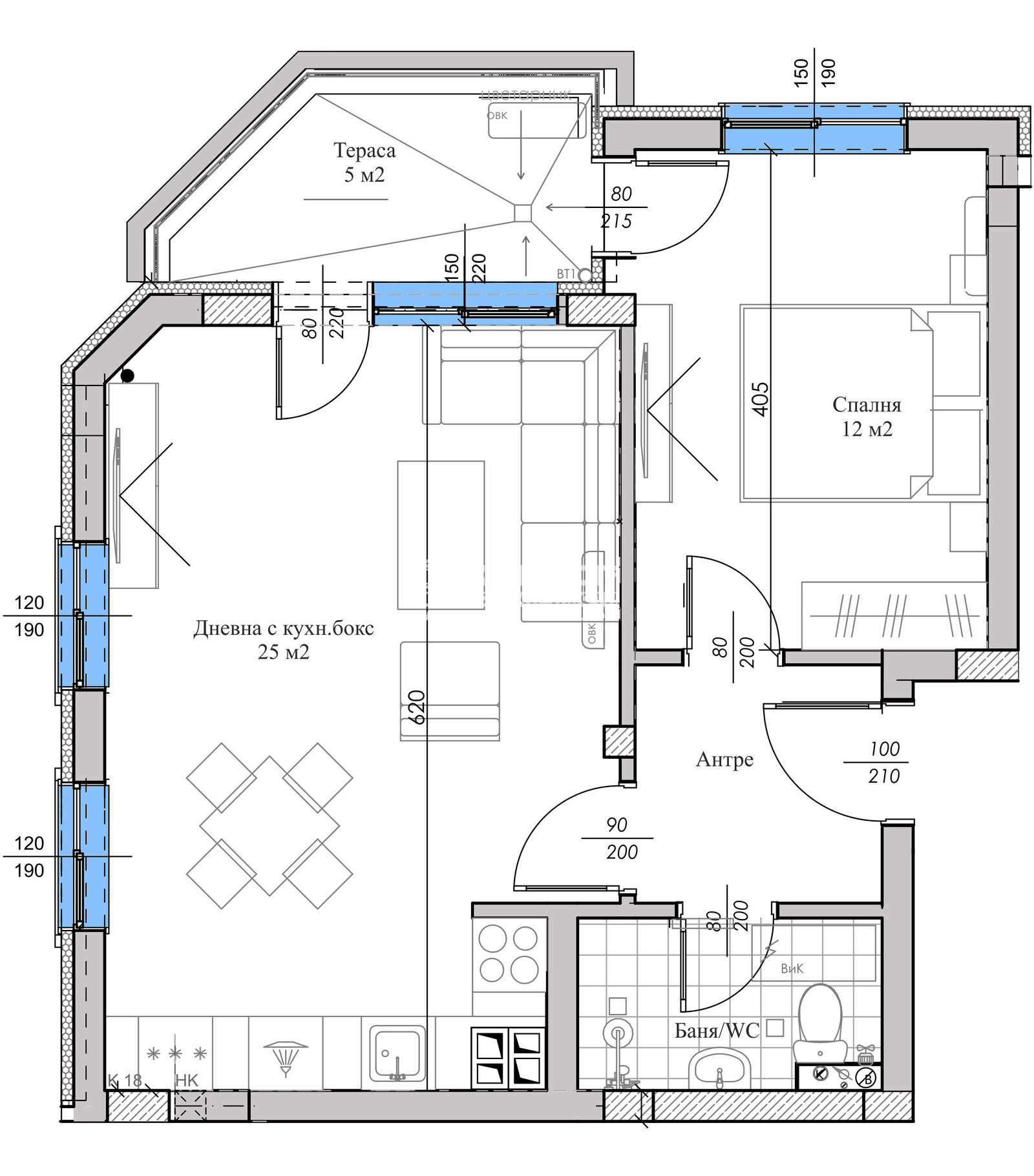
Оферта 65117: Предлагаме ви възможността да си закупите жилище в МАЛКА И ЛУКСОЗНА СГРАДА тип фамилна къща в един от най- предпочитаните райони на квартала в близост до Автогара Родопи и Централната част на града !!! Жилището се състои от светла ъглова дневна с трапезария и кухненски бокс 25кв.м., една самостоятелна спалня 12кв.м., баня с WC, една тераса, входно антре и прилежащо избено помещение с площ от 5.80кв.м. Сградата се отличава със съвременна архитектура в район с отлични комуникации. Изпълнява се от реномирана Строителна Компания, която разполага с множество готови сгради, като може да ви покажем готови жилища, за да видите качеството на изпълнение /приложен е снимков материал от готова сграда/. Перфектна локация, на приятно и спокойно място в близост до парк, училища, детска градина и удобен транспорт - ОТЛИЧНА ИНВЕСТИЦИЯ !!! Апартаментите ще бъдат отвършени според всички изисквания за съвременно строителство - блиндирана врата, 6-камерна дограма, МДФ-вътрешни врати. Луксозно завършени общите части, двойна хидро и топло изолация, италиански хидравличен асансьор, гранитено стълбище, алуминиев парапет. Свободни Партерни Гаражи !!! Възможност за разсрочено плащане в рамките на строителството или Закупуване чрез Банков Кредит!!!ВИЖТЕ ОЩЕ ИЗГОДНИ ОФЕРТИ НА https://www.kondorimoti.com/ С ЕЖЕДНЕВНА АКТУАЛИЗАЦИЯ!
Особености
Тухла
За контакт:
0897777032

Този имот се предлага само на частни лица
Брокер:
Кондор Имоти
0897777032
Още оферти от брокера: Продава | Дава под наем | Купува | Наема
Агенция:
КОНДОР - НЕДВИЖИМИ ИМОТИ
0897 777 032 , 0893 554 200;
КОНДОР - НЕДВИЖИМИ ИМОТИ logo
Медал за прослужено време
В imot.bg от 2004 г.
kondor.imot.bg
Адрес:
област Пловдив, гр. Пловдив, ул.Петко Д.Петков 23,ет.4 /до ТЦ Гранд/
http://www.kondorimoti.com
ИЗПРАТИ ЗАПИТВАНЕ
ИЗПРАТИ ЗАПИТВАНЕТО

Продава 2-СТАЕН
град Пловдив, Въстанически
Автогара Родопи
Обява: 1b172924117230328

108 700 €
212 598.72 лв.
(1 449 €, 2 834.00 лв./m2)

Цената е с включено ДДС
ЗАПАЗИ ОБЯВАТА

Местоположение: град Пловдив, Въстанически, Автогара Родопи

Допълнителни данни за имотите в района и сравнение с други райони

Покажи

Период

и 5 месеца

* Средните цени са определени чрез медианна стойност