Обяви За нас Контакти
Продава 2-СТАЕН
град Пловдив, Кършияка
Герджика
160 850 €
314 595.26 лв.

(1 375 €, 2 689.27 лв./m2)
Цената е с включено ДДС
История на цената
Коригирана в 9:57 на 21 март, 2025 год.
Обявата е посетена 26 пъти.
Площ:
117 m2
Строителство:
Тухла,

Описание на имота:


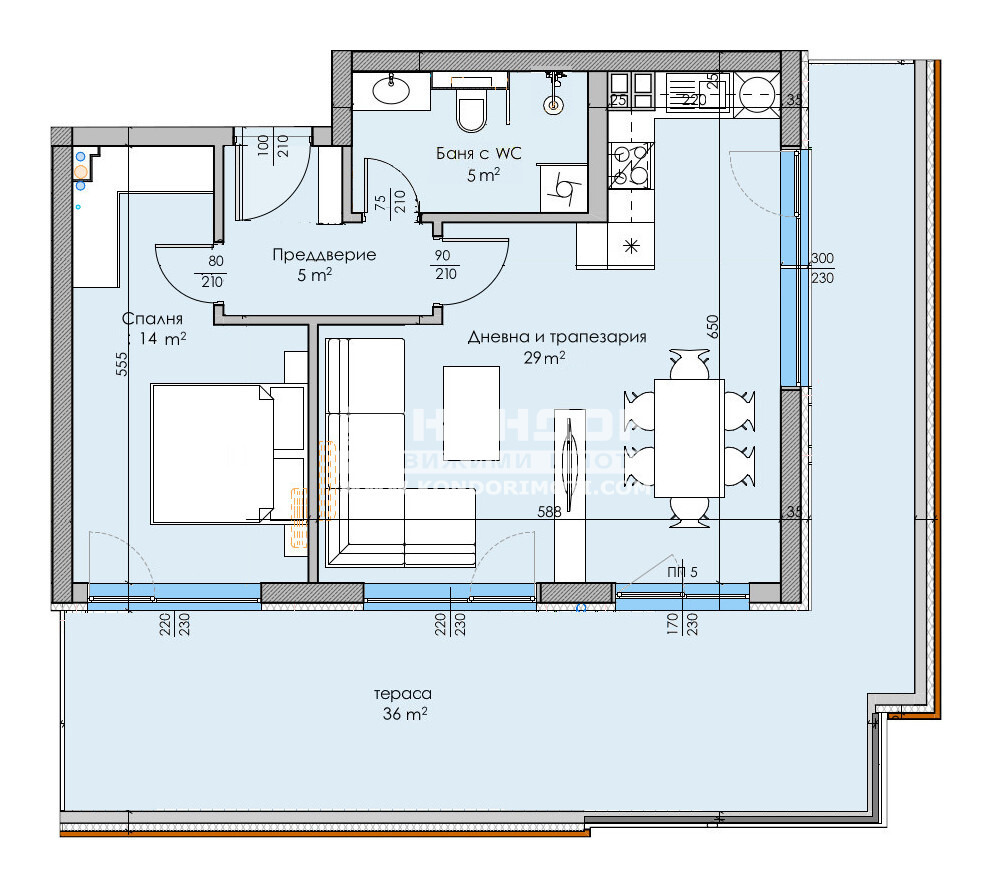
Оферта 62865: Предлагаме Ви възможността да закупите просторен 2-стаен апартамент с изложение ЮГ/ИЗТОК в луксозна жилищна сграда с модерна визия, проектиран да създаде максимален комфорт на живущите в него. Основната концепция e премиум строителство, отличаващо се със съвременен архитектурен дизайн и европейска визия. Едно от основните му предимства е страхотната локация, разположен на пешеходна близост до Централна градска част, съчетаващо лукс спокойствие и комфорт. Жилището се състои от просторна дневна - 29кв.м. с трапезария и кухненски бокс, една самостоятелна спалня 14кв.м, една панорамна тераса 36кв.м. с достъп от двете стаи, баня с тоалетна и функционален коридор. Към апартамента има прилежаща изба. Основната концепция при проектирането е да се постигнат просторни и функционални стаи с цел да се създаде максимален уют на модерното семейство. Изключителна съвременна архитектура и модерна технология на строителство. Визията е иновативна, привличаща внимание с уникалността си. Безопасна и сигурна среда за пребиваващите допълват комфорта на сградата. Всяко жилище разполага с пълно окабеляване за домофон, интернет и кабелна телевизия, общите части са луксозно завършени, а апартаментите са с алуминиева дограма с троен стъклопакет от най-висок клас, както и масивна блиндирана входна врата. За удобство на живущите съществува възможността да закупят подземни и надземни паркоместа. Възможност за закупуване чрез Банков Кредит на изключително изгодни условия за клиенти на Агенцията!
ВИЖТЕ ОЩЕ ИЗГОДНИ ОФЕРТИ НА https://www.kondorimoti.com/ С ЕЖЕДНЕВНА АКТУАЛИЗАЦИЯ!
Особености
Тухла
За контакт:
0897777032

Този имот се предлага само на частни лица
Брокер:
Кондор Имоти
0897777032
Още оферти от брокера: Продава | Дава под наем | Купува | Наема
Агенция:
КОНДОР - НЕДВИЖИМИ ИМОТИ
0897 777 032 , 0893 554 200;
КОНДОР - НЕДВИЖИМИ ИМОТИ logo
Медал за прослужено време
В imot.bg от 2004 г.
kondor.imot.bg
Адрес:
област Пловдив, гр. Пловдив, ул.Петко Д.Петков 23,ет.4 /до ТЦ Гранд/
http://www.kondorimoti.com
ИЗПРАТИ ЗАПИТВАНЕ
ИЗПРАТИ ЗАПИТВАНЕТО

Продава 2-СТАЕН
град Пловдив, Кършияка
Герджика
Обява: 1b169865285418005

160 850 €
314 595.26 лв.
История на цената
(1 375 €, 2 689.27 лв./m2)

Цената е с включено ДДС
ЗАПАЗИ ОБЯВАТА

Местоположение: град Пловдив, Кършияка, Герджика

Допълнителни данни за имотите в района и сравнение с други райони

Покажи

Период

и 3 месеца

* Средните цени са определени чрез медианна стойност