Обяви За нас Контакти
Продава 2-СТАЕН
град Пловдив, Въстанически
Общината
95 260 €
186 312.37 лв.

(1 237 €, 2 419.36 лв./m2)
Цената е с включено ДДС
Коригирана в 16:22 на 30 декември, 2024 год.
Обявата е посетена 3 пъти.
Площ:
77 m2
Строителство:
Тухла,

Описание на имота:


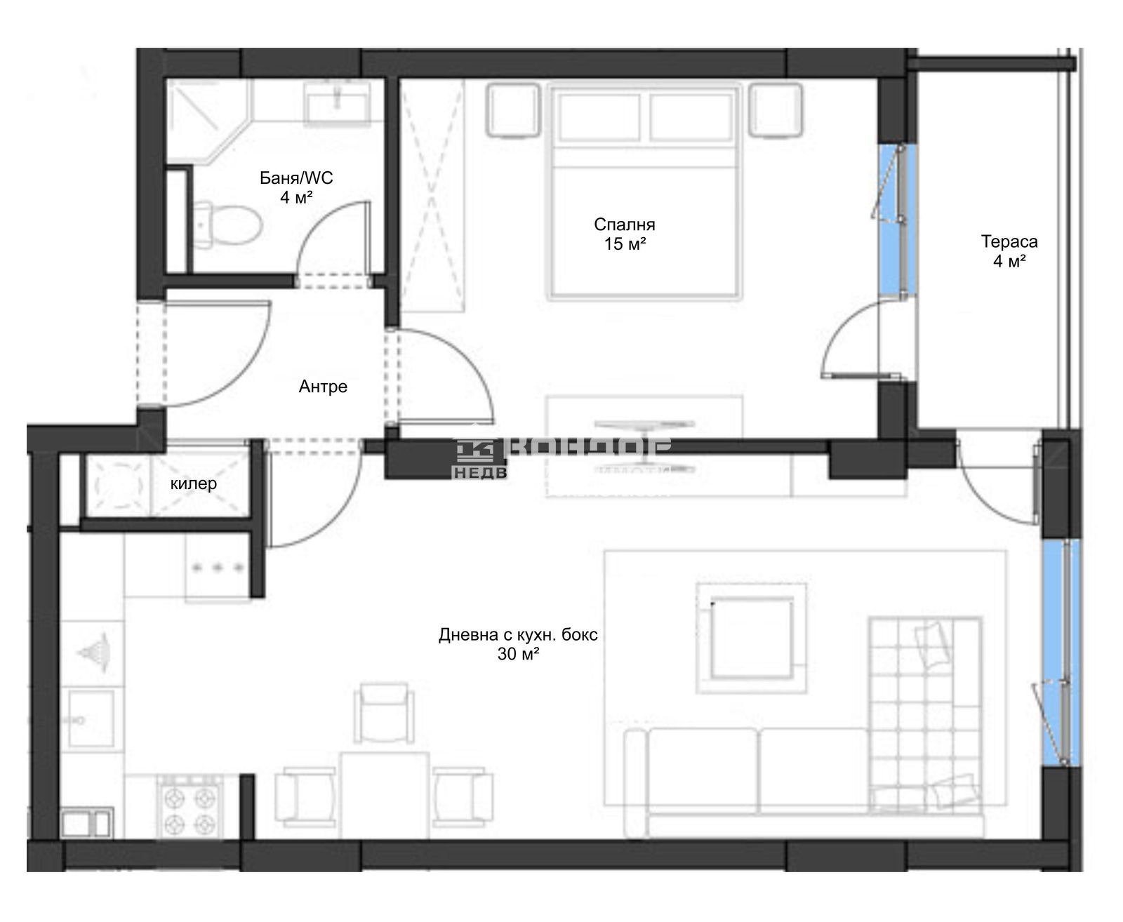
Оферта 61993: Нова луксозна сграда, намираща се на чудесно място в близост до централната част на квартала, съчетаваща в себе си модерната архитектура с високо качество на строителство и усещането за уют и спокойствие. Намира се в най-атрактивния и предпочитан за живеене и инвестиция квартал на Пловдив Кючук Париж, с отлична локация, в близост до училища, детски градини и всички необходими комуникации за нуждите на модерния човек. Жилището, което ви предлагаме е с изцяло ИЗТОЧНО изложение и се състои от дневна 30кв.м. с трапезария и кухненски бокс, една голяма самостоятелна спалня 15кв.м., баня с тоалетна, склад, входно антре и една тераса обща за двете стаи. Степен на завършеност: стени и тавани - шпакловка, под - циментова замазка, балкони - гранитогрес, мокри помещения-замазка и мазилка, парапети по балкони - стъклени, дограма - PVC с многокамерен профил, врати - външна блиндирана, хидравличен асансьор, луксозни общи части. Към момента разполагаме с различни свободни по големина жилища с функционални разпределения и избор на етаж. Свободни партерни и подземни паркоместа на цени от 8000 до 11 000 Евро!!! Възможност за разсрочено плащане в рамките на строителството или закупуване чрез Банков Кредит.ВИЖТЕ ОЩЕ ИЗГОДНИ ОФЕРТИ НА https://www.kondorimoti.com/ С ЕЖЕДНЕВНА АКТУАЛИЗАЦИЯ!
Особености
Тухла
За контакт:
0894322182

Този имот се предлага само на частни лица
Брокер:
Димитър Димитров
0894322182
Още оферти от брокера: Продава | Дава под наем | Купува | Наема
Агенция:
КОНДОР - НЕДВИЖИМИ ИМОТИ
0897 777 032 , 0893 554 200;
КОНДОР - НЕДВИЖИМИ ИМОТИ logo
Медал за прослужено време
В imot.bg от 2004 г.
kondor.imot.bg
Адрес:
област Пловдив, гр. Пловдив, ул.Петко Д.Петков 23,ет.4 /до ТЦ Гранд/
http://www.kondorimoti.com
ИЗПРАТИ ЗАПИТВАНЕ
ИЗПРАТИ ЗАПИТВАНЕТО

Продава 2-СТАЕН
град Пловдив, Въстанически
Общината
Обява: 1b168726273688634

95 260 €
186 312.37 лв.
(1 237 €, 2 419.36 лв./m2)

Цената е с включено ДДС
ЗАПАЗИ ОБЯВАТА

Местоположение: град Пловдив, Въстанически, Общината

Допълнителни данни за имотите в района и сравнение с други райони

Покажи

Период

* Средните цени са определени чрез медианна стойност