Обяви 3 За нас Контакти
Продава 2-СТАЕН
град Пловдив, Въстанически
бенз. 'Хаджията Груев'
82 900 €
162 138.31 лв.

(1 201 €, 2 348.95 лв./m2)
Цената е с включено ДДС
Коригирана в 14:32 на 14 август, 2024 год.
Обявата е посетена 1027 пъти.
Площ:
69 m2
Етаж:
2-ри от 4
Строителство:
Тухла,

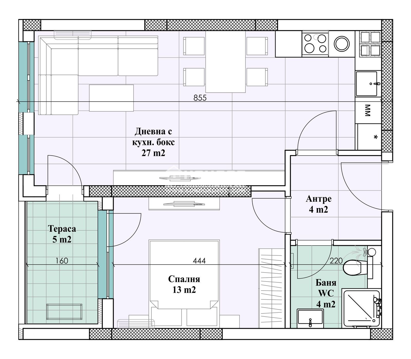
Описание на имота:


Оферта 59854: Представяме Ви проект вдъхновен от най-добрите имоти на европейския пазар, представляващ комбинация между удобно разположен дом ,качествено строителство и район с ниско застрояване. СПЕЦИАЛНО ПРЕДЛОЖЕНИЕ- Малки сгради с нисък % общи части. Нов, модерен проект представляващ две малки жилищни сгради в един общ ограден двор и много зелени площи . Разпределения - Просторни и много функционални апартаменти с просторни стаи и гледка към Родопите, а също и с партерни жилища с двор.

Апартаментът който Ви предлагаме се състои от източна дневна с кухненски бокс 26 кв.м., самостоятелна спалня 12 кв.м. ,баня с тоалетна, антре и тераса. Материали - Жилищната сграда се изражда съгласно най-високите технологични изисквания за качество и лукс. Само по два апартамента на етаж гарантират малко и подбрани съседи. Използваните материали са съобразени с най-новите тенденции в строителството - модерна външна облицовка, покривна и фасадна изолация, PVC пет камерна дограма и др. Луксозните общи части фотоклетки и безшумен асансьор, допринасят допълнително за усещането за лукс и комфорт на обитателите. За удобството на своите собственици, сградата разполага с гаражи и паркоместа. Проектът е предназначен за модерния забързан човек търсещ удобствата на града ,но в тиха и спокойна среда далеч от шума и мръсния въздух.ВИЖТЕ ОЩЕ ИЗГОДНИ ОФЕРТИ НА https://www.kondorimoti.com/ С ЕЖЕДНЕВНА АКТУАЛИЗАЦИЯ!
Особености
Тухла
За контакт:
0876669194

Този имот се предлага само на частни лица
Брокер:
Нели Паунова
0876669194
Още оферти от брокера: Продава | Дава под наем | Купува | Наема
Агенция:
КОНДОР - НЕДВИЖИМИ ИМОТИ
0897 777 032 , 0893 554 200;
КОНДОР - НЕДВИЖИМИ ИМОТИ logo
Медал за прослужено време
В imot.bg от 2004 г.
kondor.imot.bg
Адрес:
област Пловдив, гр. Пловдив, ул.Петко Д.Петков 23,ет.4 /до ТЦ Гранд/
http://www.kondorimoti.com
ИЗПРАТИ ЗАПИТВАНЕ
ИЗПРАТИ ЗАПИТВАНЕТО

Продава 2-СТАЕН
град Пловдив, Въстанически
бенз. 'Хаджията Груев'
Обява: 1b166436071382917

82 900 €
162 138.31 лв.
(1 201 €, 2 348.95 лв./m2)

Цената е с включено ДДС
ЗАПАЗИ ОБЯВАТА

Местоположение: град Пловдив, Въстанически, бенз. 'Хаджията Груев'

Допълнителни данни за имотите в района и сравнение с други райони

Покажи

Период

и 5 месеца

* Средните цени са определени чрез медианна стойност