Обяви За нас Контакти
Продава 2-СТАЕН
град Пловдив, Христо Смирненски
Комплекс Корона
87 660 €
171 448.06 лв.

(1 110 €, 2 170.97 лв./m2)
Коригирана в 16:42 на 13 февруари, 2024 год.
Обявата е посетена 283 пъти.
Площ:
79 m2
Етаж:
5-ти от 5
Строителство:
Тухла,

Описание на имота:


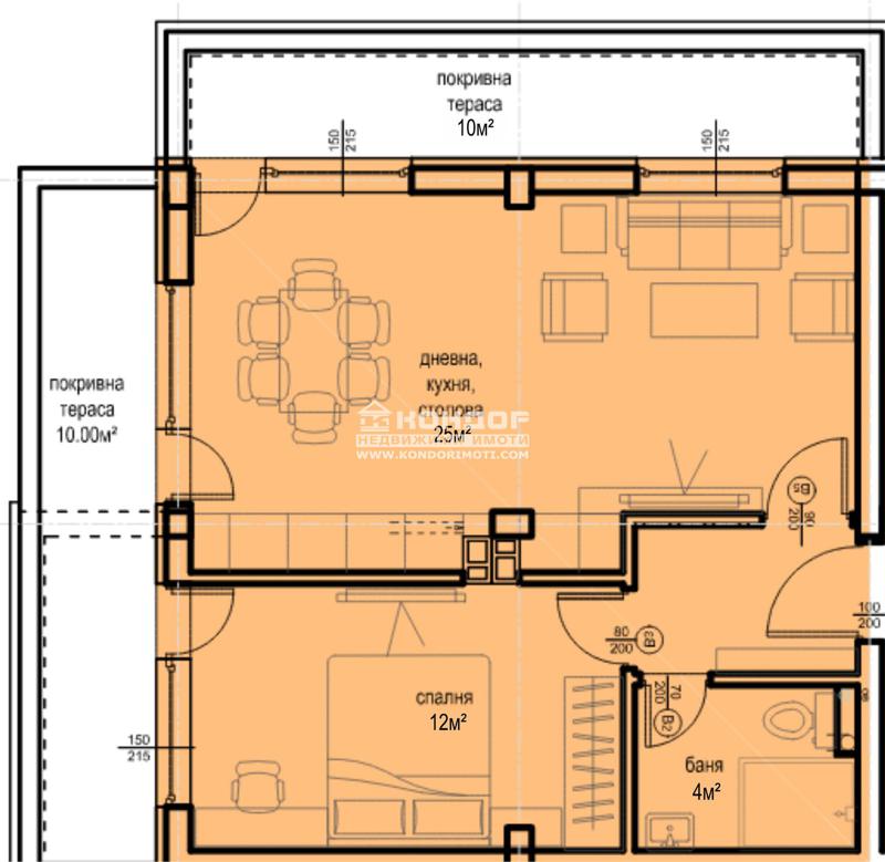
Оферта 55304: Предлагаме Ви възможността да си закупите панорамен двустаен апартамент в новоизграждаща се малка и модерна сграда, разположена на тихо и спокойно място в квартал Смирненски, в близост до голям зелен парк, детска градина и елитни училища, като района е наричан още 'Зелените дробове на град Пловдив'. Сградата е проектирана с коренно различна концепция за визия и стил, с цел да създаде максимален комфорт,съчетаваща високо качество на изпълнение. Жилището се състои от дневна с трапезария и кухненски бокс - 25 кв., спалня - 12 кв.м, санитарно помещение,входно антре и две панорамни тераси.Изпълнението се осъществява с висококачествени материали и съвременни технологии по европейски стандарт петкамерна PVC дограма, блиндирана входна врата с 4-странно заключване, иноксови парапети, декоративни фасадни мазилки и Еталбонд, сензорно осветление. Сградата се намира в един от най-предпочитаните напоследък за живеене райони в града, с обширна паркова среда, а именно близостта до Гребна База правят имота особено подходящ, както за живеене, така и за отдаване под наем. Проектирано е изграждането на надземни паркоместа, които могат да бъдат закупени на цени от 5 000 и партерни гаражи на цени започващи от 10 000 за всеки апартамент. Възможност за разсрочено плащане в рамките на строителството и съдействие от наша страна за преференциални условия при теглене на банков кредит от водещи банки!ВИЖТЕ ОЩЕ ИЗГОДНИ ОФЕРТИ НА https://www.kondorimoti.com/ С ЕЖЕДНЕВНА АКТУАЛИЗАЦИЯ!
Особености
Тухла
За контакт:
0897777032

Този имот се предлага само на частни лица
Брокер:
Кондор Имоти
0897777032
Още оферти от брокера: Продава | Дава под наем | Купува | Наема
Агенция:
КОНДОР - НЕДВИЖИМИ ИМОТИ
0897 777 032 , 0893 554 200;
КОНДОР - НЕДВИЖИМИ ИМОТИ logo
Медал за прослужено време
В imot.bg от 2004 г.
kondor.imot.bg
Адрес:
област Пловдив, гр. Пловдив, ул.Петко Д.Петков 23,ет.4 /до ТЦ Гранд/
http://www.kondorimoti.com
ИЗПРАТИ ЗАПИТВАНЕ
ИЗПРАТИ ЗАПИТВАНЕТО

Продава 2-СТАЕН
град Пловдив, Христо Смирненски
Комплекс Корона
Обява: 1b162134148451169

87 660 €
171 448.06 лв.
(1 110 €, 2 170.97 лв./m2)

ЗАПАЗИ ОБЯВАТА

Местоположение: град Пловдив, Христо Смирненски, Комплекс Корона

Допълнителни данни за имотите в района и сравнение с други райони

Покажи

Период

и 3 месеца

* Средните цени са определени чрез медианна стойност